Appartement Saint-Raphaël - 2 chambres - 79m²
83530 - Saint-Raphaël
DESCRIPTIF
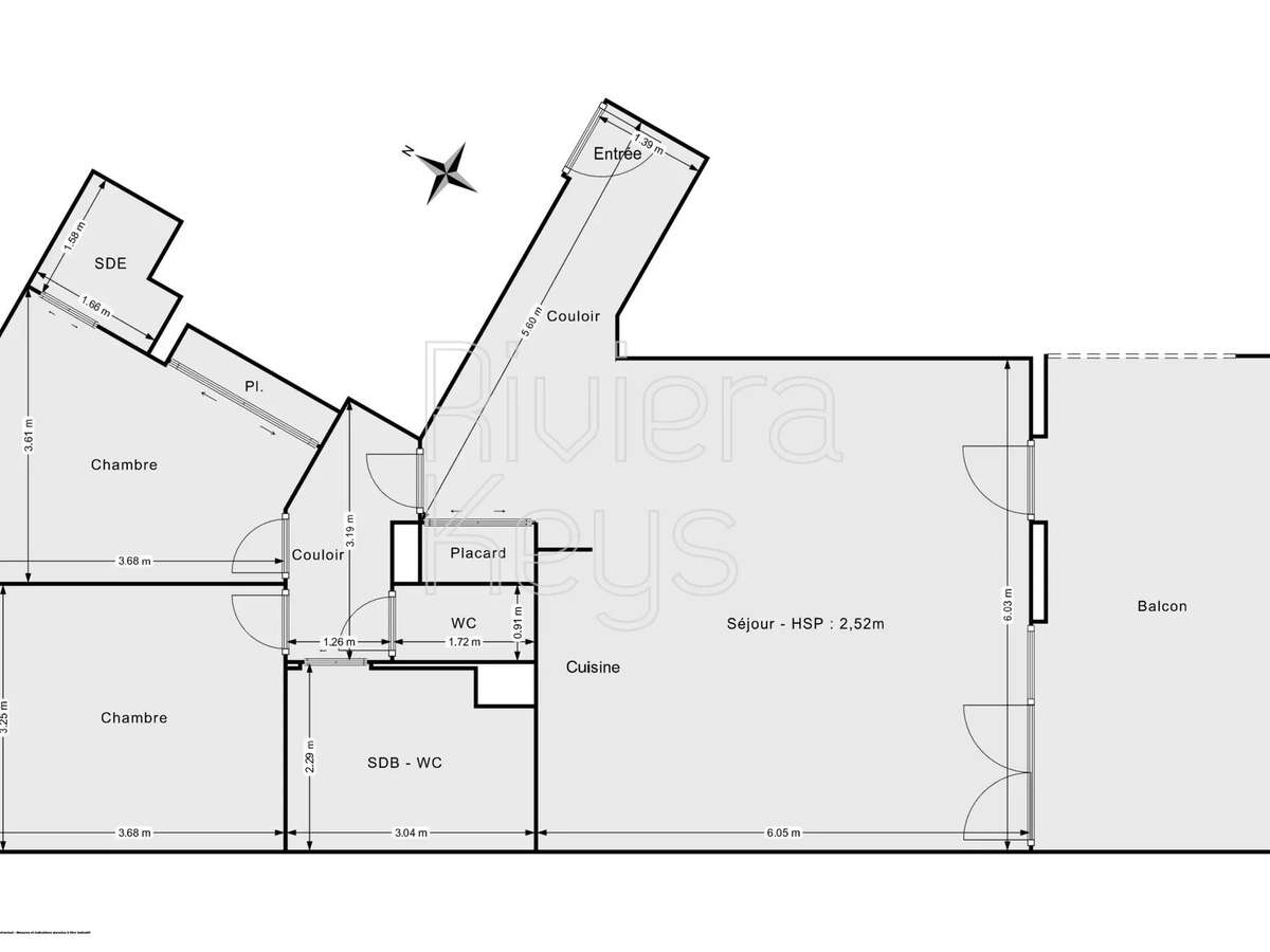
Dans le quartier prisé de Valescure, à proximité des golfs et du massif de l’Estérel, cet appartement de 80 m² Loi Carrez bénéficie d’un environnement calme et verdoyant.Situé dans une copropriété récente avec piscine, solarium et parc arboré, il offre un cadre de vie agréable à seulement 10 minutes des plages.L’appartement comprend une vaste pièce à vivre exposée sud-ouest avec cuisine américaine intégrée très lumineuse.
L’espace nuit compte 2 chambres dont une suite parentale avec salle d’eau privative, ainsi qu’une salle de bains indépendante et des toilettes séparées.La grande terrasse sans vis-à-vis prolonge idéalement le séjour.
Un garage fermé, une cave aménagée et une place de parking privative couverte complètent ce bien.
- Emplacement idéal à proximité des golfs et du massif de l'Estérel.
- Confort moderne dans une copropriété récente avec piscine et parc arboré.
SAINT-RAPHAËL – Valescure : Appartement 3 pièces a
Les informations sur les risques auxquels ce bien est exposé sont disponibles sur le site Géorisques :
Réf : 86402019 - Date : 09/01/2026
LES ATOUTS
CARACTÉRISTIQUES
DIAGNOSTICS ENERGETIQUES
LOCALISATION
NOUS CONTACTER
DEMANDE D'INFORMATIONS
Demander plus d’informations à Riviera Keys.












