Appartement avec Vue sur mer Pléneuf-Val-André - 4 chambres
22370 - Pléneuf-Val-André
DESCRIPTIF
L'agence 'MON BIEN A LA MER', spécialiste de l'immobilier neuf sur les côtes Bretonnes, vous présente :Emplacement exceptionnel : Port de Dahouët :Résidence de grand standing de 33 lots.
Matériaux nobles, surfaces généreuses.
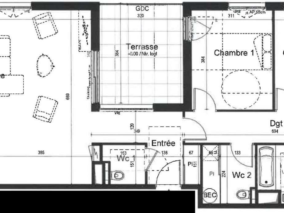
Frais de notaire réduits.Livrée et visitable.Magnifique T5 au 3è et dernier étage (occupant toute la partie d'étage face au Port et à la mer).Vue Mer/Port de toutes les fenêtres en façade, terrasse incrustée dans l'appartement sans vis à vis de 12,45m2Cet appartement comprend :- Séjour/cuisine 57m2, cellier 4m2, entrée, placards, wc séparé- Une suite parentale 15m2 avec salle d'eau attenante, trois autres chambres 11,91-9,2-10,83m2, Salle de bains avec baignoire et double vasque, 2è wc séparéParquet contrecollé, carrelage/faïence standing, wc suspendus, menuiseries alu/volets roulants électriques.Inclus dans le prix : Box double+parking+cave.Nous ConsulterHonoraires à la charge du vendeur.
Dans une copropriété de 33 lots.
Quote-part moyenne du budget prévisionnel 1 795 €/an.
Aucune procédure n'est en cours.
Classe énergie B, Classe climat A Montant estimé des dépenses annuelles d'énergie pour un usage standard : entre 840.00 € et 1200.00 € sur les années 2021, 2022 et 2023 (abonnements compris).
Les informations sur les risques auxquels ce bien est exposé sont disponibles sur le site Géorisques : https://www.georisques.gouv.fr.
Votre conseiller MON BIEN A LA MER : Gérant - .fr MON BIEN A LA MERCarte T CPI 2201 20 0 RCP ACM IARD B1 7025278
- Vue imprenable sur le port et la mer depuis toutes les fenêtres.
- Terrasse intégrée de 12,45 m² sans vis-à-vis, idéale pour les repas.
Vente appartement
Réf : VA6180-BIENALAMER - Date : 28/11/2025
LES ATOUTS
CARACTÉRISTIQUES
DIAGNOSTICS ENERGETIQUES
LOCALISATION
NOUS CONTACTER
DEMANDE D'INFORMATIONS
Demander plus d’informations à MonBienaLaMer.






























