470 000 €
Appartement Paris 9e - 29m²
75009 - Paris 9e
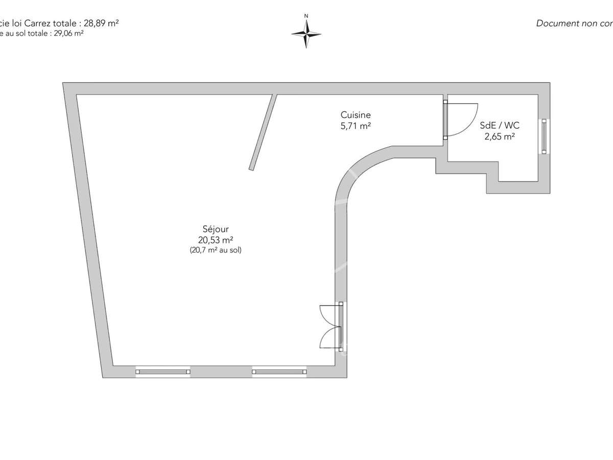
28.89m²
1 pièce
1 sde
DESCRIPTIF
Rue Drouot.Au cinquième étage par ascenseur d'un bel immeuble en pierre de taille réhabilité en 2025, magnifique studio en parfait état de 28,89m² loi Carrez.Au calme absolu sur cour, l'appartement bénéficie d'une très belle luminosité et du soleil entrant grâceà son exposition sud.Refait à neuf par architecte, il est totalement équipé et vendu meublé.
- Studio meublé : entièrement équipé et prêt à vivre.
- Rénovation de qualité : travaux réalisés par un architecte.
Paris 9e - RUE DROUOT - Studio à vendre - 28,89m²
Les informations sur les risques auxquels ce bien est exposé sont disponibles sur le site Géorisques :
Réf : 1168POIPLA - Date : 06/02/2026
LES ATOUTS
Ascenseur
CARACTÉRISTIQUES
Prix
470 000 €
Type de bien
Appartement
Ville
Paris 9e (75009)
Pièces
1
Surface
29 m²
Surface habitable
28,89 m²
Salles d'eau
1
Type de cuisine
Cuisine nonéquipée
Detail du prix
DIAGNOSTICS ENERGETIQUES
DPE
C
140 kWh/m² .an
GES
A
4 kgCO2/m² .an
Voir plus
LOCALISATION
NOUS CONTACTER
DEMANDE D'INFORMATIONS
Demander plus d’informations à JUNOT 10EME.











