Appartement Paris 9e - 3 chambres - 117m²
75009 - Paris 9e
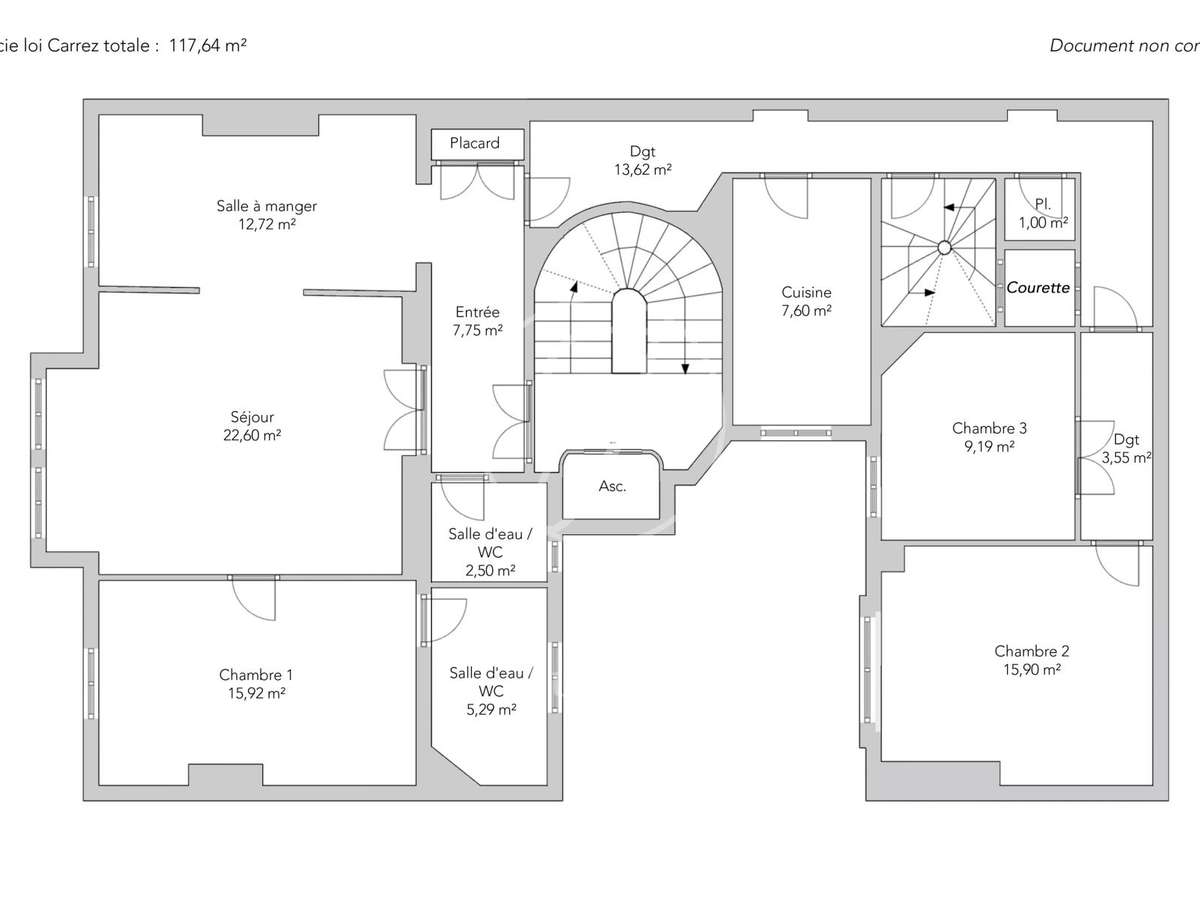
DESCRIPTIF
Idéalement situé à deux pas du square Montholon.Au deuxième étage avec ascenseur d’un très bel immeuble en pierre de taille, cet appartement familial de cinq pièces développe une superficie de 117,64m² loi Carrez et offre trois chambres.Il comporte une entrée desservant un double séjour lumineux de 45m², une cuisine indépendante entièrement équipée, trois chambres dont une suite parentale avec salle de bains et toilettes, deux autres chambres au calme sur cour ainsi qu'une salle de douche avec toilettes.Le charme de l’ancien est préservé avec parquet en point de Hongrie, moulures et cheminées.
Les beaux volumes sont mis en valeur par une hauteur sous plafond de 3,20m.Une cave complète ce bien.
- Emplacement privilégié à deux pas du square Montholon.
- Charme de l'ancien avec parquet, moulures et cheminées.
Paris 9e - SQUARE MONTHOLON - Appartement à vendre
Les informations sur les risques auxquels ce bien est exposé sont disponibles sur le site Géorisques :
Réf : 1160POIGON - Date : 26/01/2026
LES ATOUTS
CARACTÉRISTIQUES
DIAGNOSTICS ENERGETIQUES
LOCALISATION
NOUS CONTACTER
DEMANDE D'INFORMATIONS
Demander plus d’informations à JUNOT 10EME.























