Appartement Paris 9e - 3 chambres - 193m²
75009 - Paris 9e
DESCRIPTIF
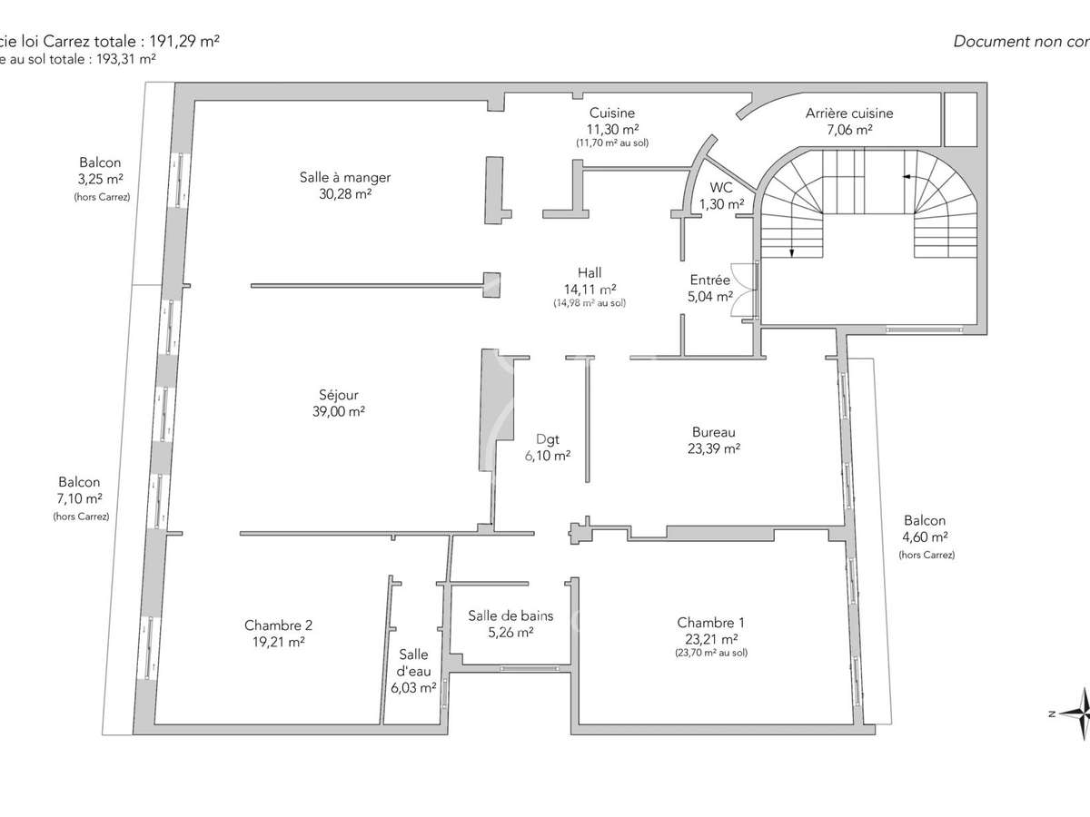
En plein cœur de la Nouvelle Athènes.Au sein d'un superbe immeuble en pierre de taille fin XIXe avec gardienne à demeure, au quatrième étage par ascenseur, appartement familial et de réception de 191,29m² loi Carrez.Lumineux, il comprend une galerie d'entrée, un spacieux salon avec cheminée, une salle à manger donnant sur la rue La Bruyère, une cuisine dînatoire indépendante, trois chambres, une salle de bains avec toilettes, une salle de douche et des toilettes séparées.Ce bien saura séduire par sa situation très recherchée, son calme absolu, sa belle lumière, son charme ancien préservé (parquet en point de Hongrie, moulures et cheminées), ses balcons et ses beaux volumes.Un emplacement de parking et une cave à proximité complètent cette offre.Sectorisation Condorcet.EXCLUSIVITÉ.
- Emplacement privilégié au cœur de la Nouvelle Athènes avec commodités à proximité.
- Superbes volumes au sein d'un immeuble bourgeois de style XIXe siècle.
Paris 9e - NOUVELLE ATHÈNES / RUE LA BRUYÈRE - App
Les informations sur les risques auxquels ce bien est exposé sont disponibles sur le site Géorisques :
Réf : 3494STGMIC - Date : 26/01/2026
LES ATOUTS
CARACTÉRISTIQUES
DIAGNOSTICS ENERGETIQUES
LOCALISATION
NOUS CONTACTER
DEMANDE D'INFORMATIONS
Demander plus d’informations à JUNOT SAINT GEORGES.





















