Appartement Paris 9e - 2 chambres - 118m²
75009 - Paris 9e
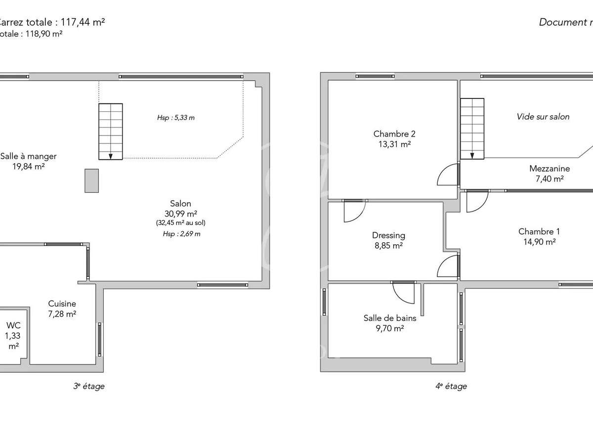
DESCRIPTIF
À deux pas de la rue Lepic et du Moulin Rouge, au cœur d'une avenue paisible, superbe atelier d'artiste en duplex situé au troisième étage par ascenseur d'un immeuble Art déco de 1930.D'une surface de 118,90m² (117,44m² loi Carrez), ce bien rare séduit par son calme et sa luminosité exceptionnelle grâce à sa majestueuse verrière, son orientation plein est et ses volumes généreux.
Rénové avec goût et raffinement, il est agencé comme suit: au premier niveau, une entrée, une cuisine séparée équipée, des toilettes invités, une superbe pièce de réception de 50,83m² regroupant séjour et salle à manger disposant d'une cheminée fonctionnelle et d'une belle hauteur sous plafond.À l'étage, une galerie en mezzanine ouverte sur la réception, distribue deux chambres confortables, une pièce aménagée en dressing ainsi qu'une spacieuse salle de bains avec douche, baignoire et toilettes.Prestations soignées, ambiance sereine et beaux volumes font de ce bien un lieu très chaleureux.Une cave complète ce bien.Copropriété de standing sécurisée avec digicode, interphone et gardienne.
- Lumineux avec une verrière majestueuse orientée plein est.
- Rénovation raffinée alliant confort moderne et charme de l'Art déco.
Lisière Paris 18e / 9e - AVENUE RACHEL
Les informations sur les risques auxquels ce bien est exposé sont disponibles sur le site Géorisques :
Réf : 5458JUNVAG09 - Date : 08/01/2026
LES ATOUTS
CARACTÉRISTIQUES
DIAGNOSTICS ENERGETIQUES
LOCALISATION
NOUS CONTACTER
DEMANDE D'INFORMATIONS
Demander plus d’informations à JUNOT MONTMARTRE.























