Appartement Paris 8e - 3 chambres - 130m²
75008 - Paris 8e
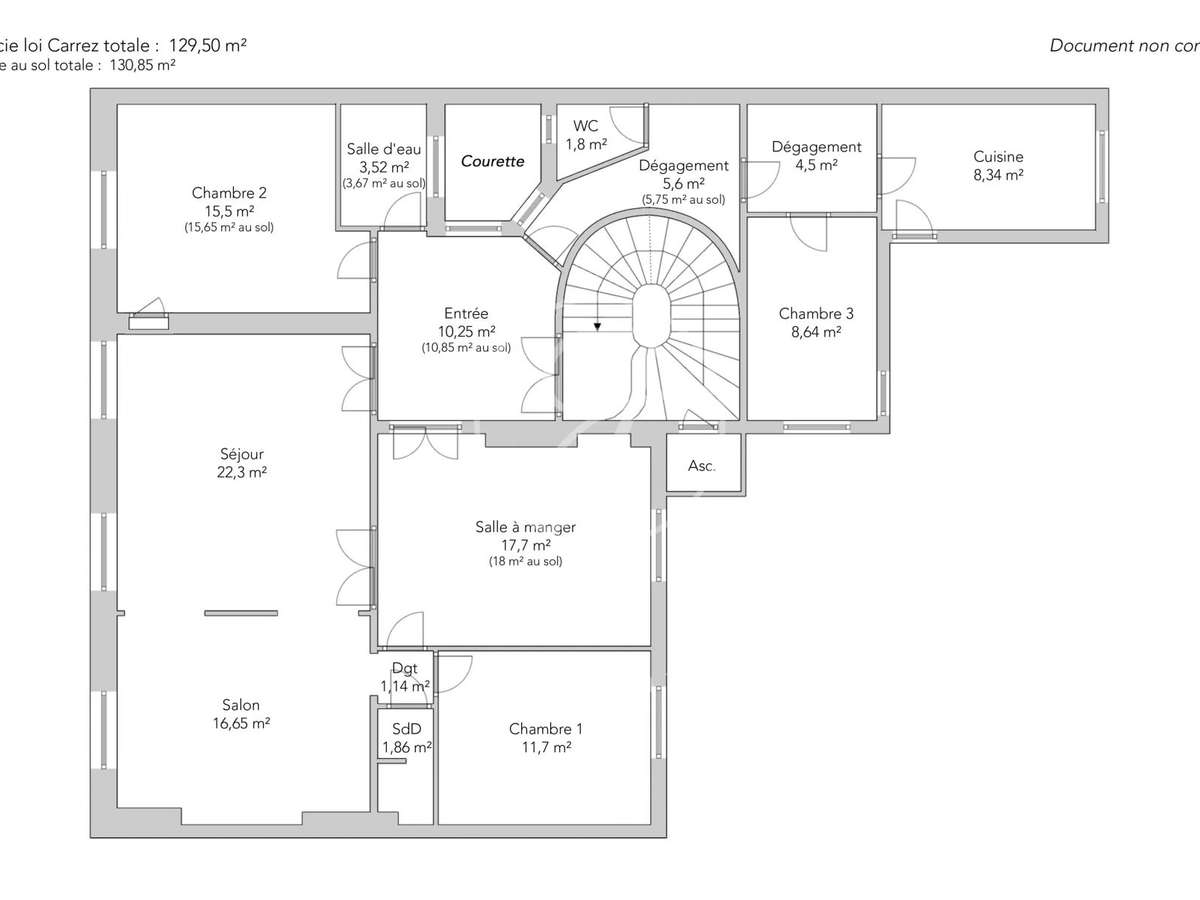
DESCRIPTIF
Dans une rue calme du quartier Villiers au sein d'un bel immeuble très bien tenu et gardianne, au quatrième étage avec ascenseur, charmant appartement familial et de réception de 129,5m² loi Carrez.Composé de six pièces, il offre une entrée desservant un espace de réception généreux et lumineux, une cuisine indépendante, trois ou quatre chambres, une salle de bains, une salle de douche et des toilettes indépendantes.L'appartement a conservé ses éléments d'origines, parquet et moulures.
Au calme absolu, plan modulable et vue dégagée.Une cave complète ce bien.
- Emplacement calme dans le quartier Villiers, idéal pour la vie de famille.
- Appartement spacieux de 129,5m² avec de nombreuses possibilités d'agencement.
Paris 8e - VILLIERS - Appartement à vendre - 5 piè
Les informations sur les risques auxquels ce bien est exposé sont disponibles sur le site Géorisques :
Réf : 232COMDHA/2920MON - Date : 27/01/2026
LES ATOUTS
CARACTÉRISTIQUES
DIAGNOSTICS ENERGETIQUES
LOCALISATION
NOUS CONTACTER
DEMANDE D'INFORMATIONS
Demander plus d’informations à JUNOT MONCEAU.

























