Appartement Paris 8e - 2 chambres - 76m²
75008 - Paris 8e
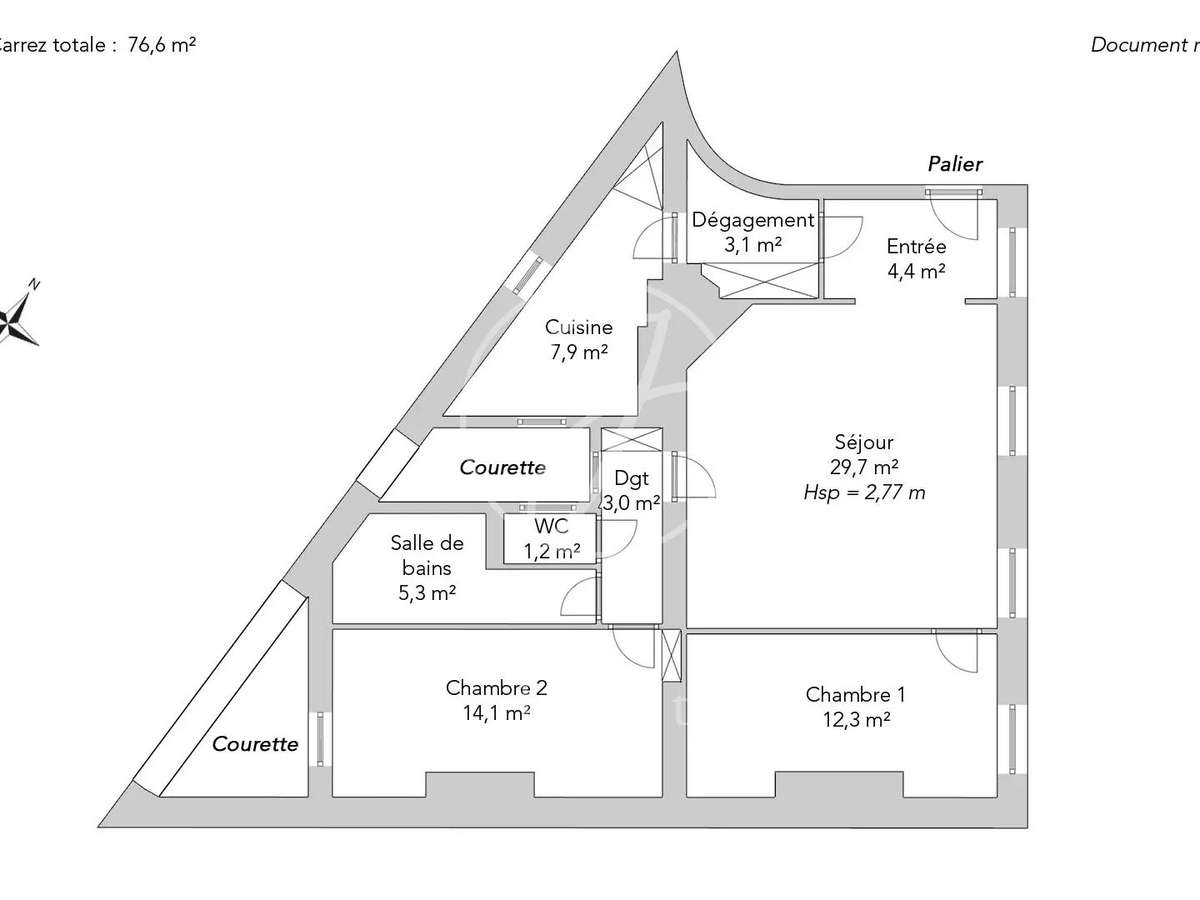
DESCRIPTIF
Dans une prestigieuse copropriété haussmannienne avec gardienne, au quatrième étage avec ascenseur, cet appartement de 78,6m² loi Carrez est idéalement situé au cœur du 8ᵉ arrondissement, à proximité de la Madeleine, du Palais de l’Élysée et de l’ambassade des États-Unis.
Il se compose d'une entrée, d'un grand séjour, d'une cuisine indépendante, de deux chambres, ainsi que d'une salle de douche avec toilettes.
Ce bien offre calme et luminosité.
- Emplacement privilégié à proximité de la Madeleine et de l'Élysée.
- Copropriété haussmannienne qualité avec gardienne et ascenseur.
Paris 8e - MALESHERBES / MADELEINE - Appartement à
Les informations sur les risques auxquels ce bien est exposé sont disponibles sur le site Géorisques :
Réf : 833JFPLON12 / 2880MON - Date : 13/01/2026
LES ATOUTS
CARACTÉRISTIQUES
DIAGNOSTICS ENERGETIQUES
LOCALISATION
NOUS CONTACTER
DEMANDE D'INFORMATIONS
Demander plus d’informations à JUNOT MONCEAU.
















