Appartement Paris 8e - 4 chambres - 176m²
75008 - Paris 8e
DESCRIPTIF
Au cœur du quartier de l'Europe - rue de Saint Petersbourg, aux lisières du 8ème, 9ème et 17ème arrondissements cet appartement à rénover avec un beau potentiel se situe au quatrième étage par ascenseur d'un bel immeuble ancien avec gardienne.
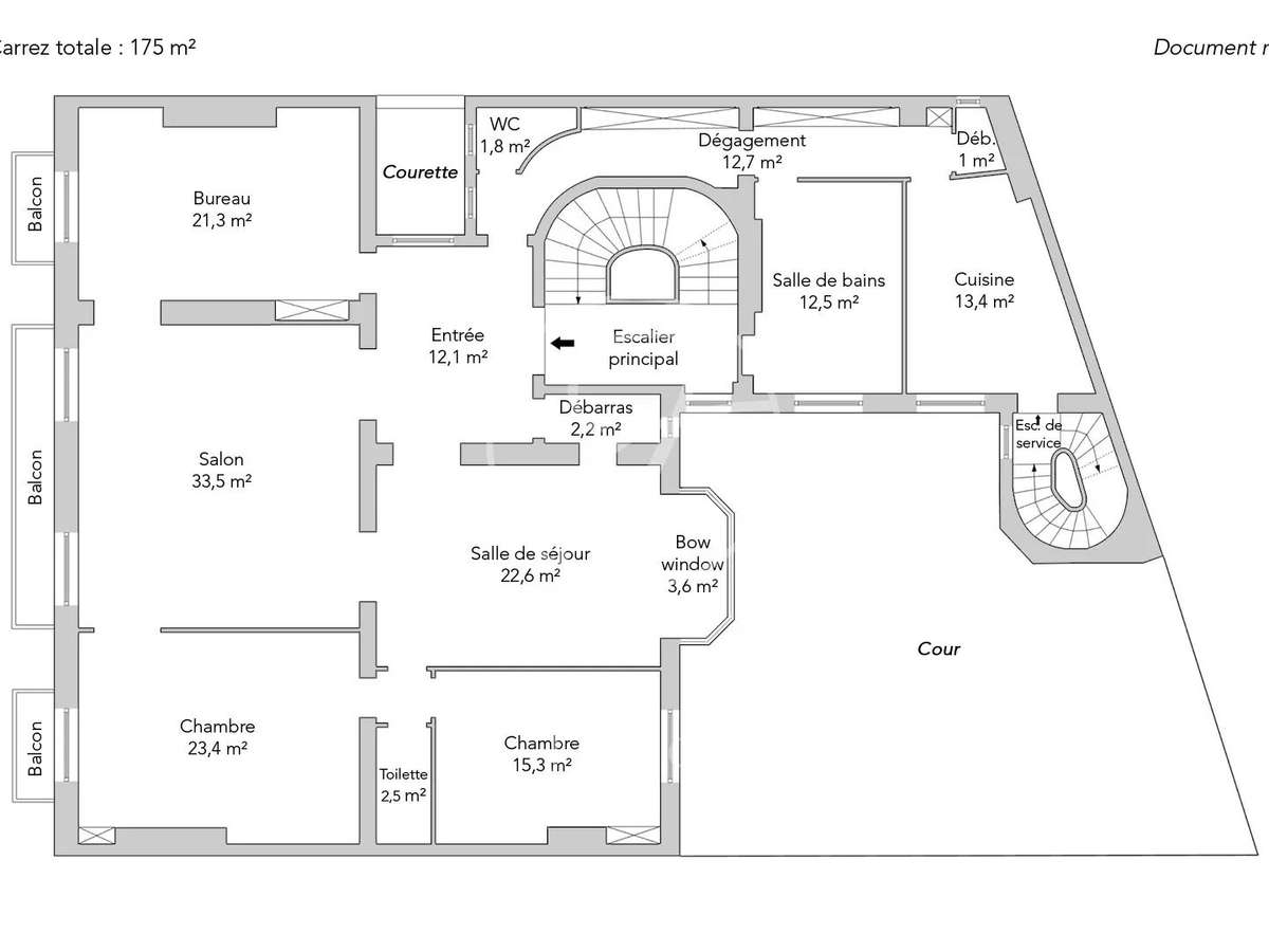
À rénover, ce bien familial de 173,07m²loi Carrez (176,26m² au sol + 4,85m² de balcons) bénéficie de beaux volumes (3,1m de hauteur sous plafond) et d'un plan modulable offrant plusieurs configurations.
Seul à l'étage et traversant, il se compose de : entrée, double séjour sur rue avec cheminée donnant sur balcon filant, grande chambre, salle à manger avec bow-window, débarras, 2 chambres, salle de douche, toilette séparé, dégagement avec rangements desservant salle de bains, cuisine séparée.
Possibilité quatre/cinq chambres.
Parquet moulures cheminées.
Une cave en sous-sol complète ce bien.
- Emplacement privilégié : quartier animé et recherché avec commerces et transports.
- Beaux volumes : hauteur sous plafond de 3,1 mètres et plan modulable.
Paris 8e - EUROPE - Appartement à vendre - 6 pièce
Les informations sur les risques auxquels ce bien est exposé sont disponibles sur le site Géorisques :
Réf : 3460BRECHAU/2903MON08 - Date : 08/01/2026
LES ATOUTS
CARACTÉRISTIQUES
DIAGNOSTICS ENERGETIQUES
LOCALISATION
NOUS CONTACTER
DEMANDE D'INFORMATIONS
Demander plus d’informations à JUNOT MONCEAU.





























