Appartement Paris 7e - 5 chambres - 194m²
75007 - Paris 7e
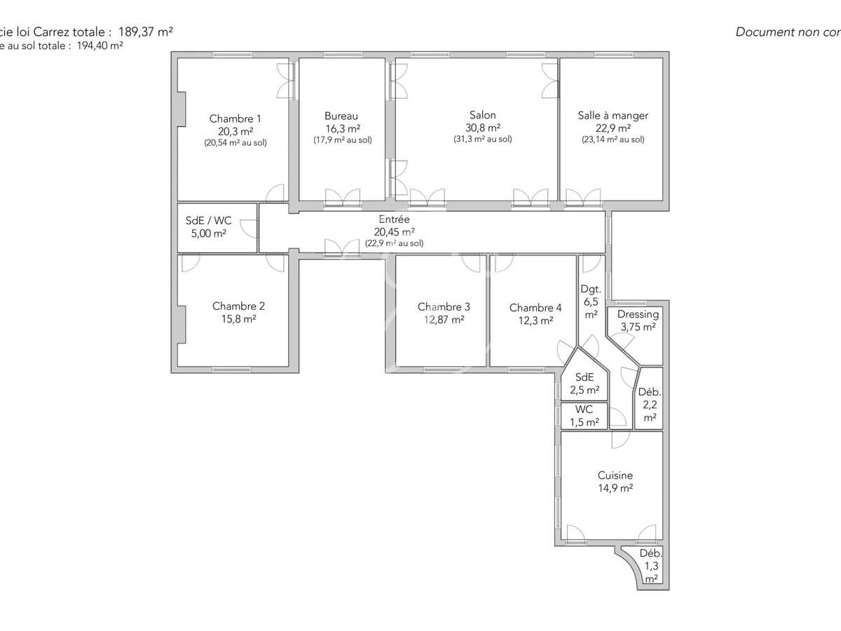
DESCRIPTIF
Au premier étage par ascenseur d’un superbe immeuble en pierre de taille de grand standing, cet appartement familial et de réception de 189,37m² loi Carrez séduit par ses beaux volumes, son élégance et son cachet.L’entrée ouvre sur une magnifique double réception, lumineuseet généreusement proportionnée, offrant un cadre idéal pour la vie de famille comme pour la réception.
La distribution permet de distinguer avec équilibre les espaces de vie de l’espace nuit, qui comprend cinq chambres et offre de nombreuses possibilités d’aménagement, notamment pour un bureau ou des chambres d’invités.
L’appartement dispose également de deux salles de douche dont une avec des toilettes et des toilettes indépendantes, assurant un confort quotidien appréciable.Une cave complète cette offre.
Une chambre de service est proposée en supplément au prix de 100.000euros, véritable espace annexe particulièrement recherché.Par sa superficie rare, la qualité de son plan et le standing de son immeuble, cet appartement constitue une opportunité de choix pour une clientèle à la recherche d’un bien familial de caractère.
- Emplacement privilégié à Sèvres-Babylone, proche des commerces et transports.
- Superbe double réception lumineuse, idéale pour la famille et les réceptions.
Paris 7e - SÈVRES-BABYLONE / SAINTS-PÈRES - Appart
Les informations sur les risques auxquels ce bien est exposé sont disponibles sur le site Géorisques :
Réf : 2010CHMSAR07 - Date : 01/04/2026
LES ATOUTS
CARACTÉRISTIQUES
DIAGNOSTICS ENERGETIQUES
LOCALISATION
NOUS CONTACTER
DEMANDE D'INFORMATIONS
Demander plus d’informations à JUNOT 6E.
























