Appartement Paris 7e - 2 chambres - 83m²
75007 - Paris 7e
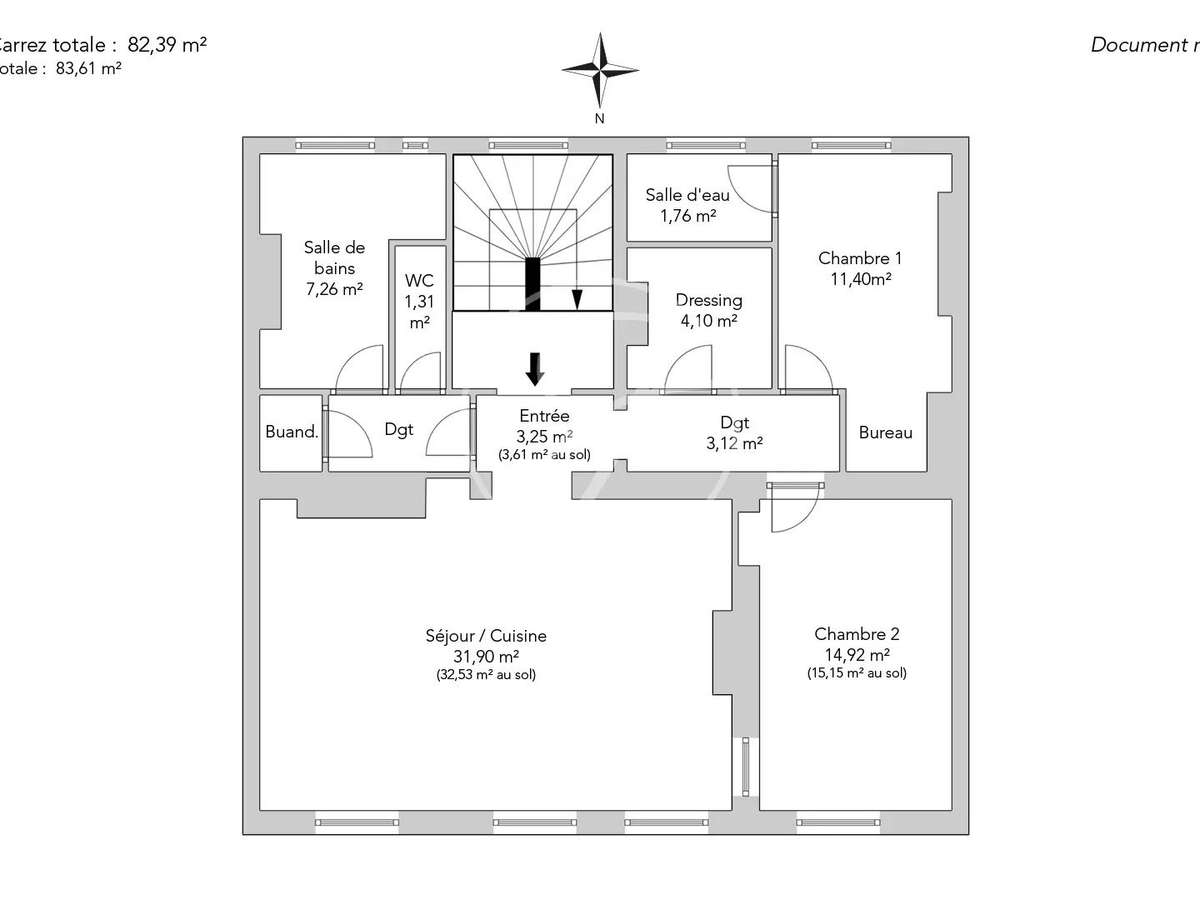
DESCRIPTIF
Au cœur du quartier Sèvres-Babylone, idéalement situé entre le Bon Marché et le Lutetia, au troisième étage par escalier d'un bel immeuble en pierre de taille, découvrez un splendide appartement de 82,39m² loi Carrez sublimé par une rénovation de qualité.Il comprend une entrée, un vaste double séjour avec une belle cuisine en pierre, trois grandes fenêtres sur la rue et une jolie cheminée avec son miroir d'époque.L'espace nuit comporte une grande chambre avec des rangements, une seconde chambre sur la cour avec des rangements, un espace bureau et une salle de douche.Un dressing, une buanderie et une grande salle de bains avec douche et baignoire complètent ce plan optimal.Le bien est climatisé, calme et lumineux.
Une cave complète cette offre.EXCLUSIVITÉ.
- Emplacement privilégié à proximité du Bon Marché et du Lutetia.
- Belle rénovation alliant charme de l'ancien et confort moderne.
Paris 7e - CHOMEL / BON MARCHÉ - Appartement à ven
Les informations sur les risques auxquels ce bien est exposé sont disponibles sur le site Géorisques :
Réf : 1768CHMGIR07 - Date : 17/03/2026
LES ATOUTS
CARACTÉRISTIQUES
DIAGNOSTICS ENERGETIQUES
LOCALISATION
NOUS CONTACTER
DEMANDE D'INFORMATIONS
Demander plus d’informations à JUNOT 6E.


















