Appartement Paris 7e - 1 chambre - 94m²
75007 - Paris 7e
DESCRIPTIF
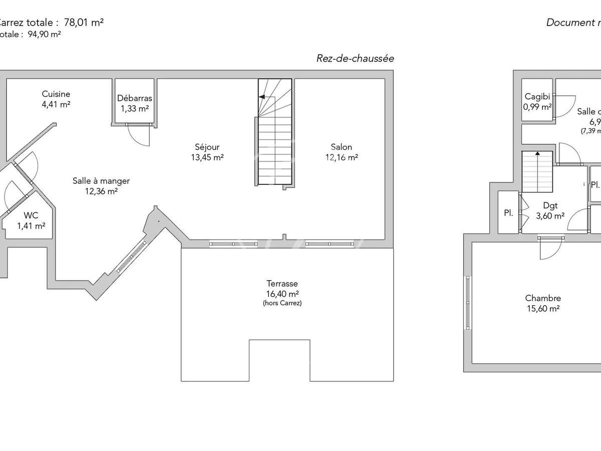
Situé dans une rue calme au sein du quartier recherché de Gros Caillou, ce bien de 78,01m² loi Carrez et 94,90m² au sol allie charme de l’ancien, rénovation soignée et cadre de vie privilégié.Il offre une terrasse privative végétalisée, véritable espace extérieur en retrait de l’animation du quartier.Ce bien comporte, au premier niveau, une entrée avec des toilettes invités, un double séjour orienté au sud et prolongé par sa cuisine ouverte intégralement équipée, ainsi qu'un deuxième salon adapté pour un usage en seconde chambre.Un escalier contemporain mène au niveau inférieur, où se trouvent une spacieuse chambre avec rangements, une salle de douche avec double vasque, douche et baignoire, ainsi que des toilettes séparées.L’ensemble bénéficie de généreux volumes, d’une exposition plein sud et d’une ambiance chaleureuse et sereine à l’abri de toute nuisance.Une offre rare, idéale en résidence principale comme en pied-à-terre, à deux pas de la rue Cler, du Champ-de-Mars et de la Seine.
- Terrasse privative : espace extérieur intimiste et végétalisé.
- Rénovation soignée : allie charme de l’ancien et confort moderne.
Paris 7e - GROS CAILLOU - Appartement à vendre - 3
Les informations sur les risques auxquels ce bien est exposé sont disponibles sur le site Géorisques :
Réf : 3210GREBOL - Date : 08/01/2026
LES ATOUTS
CARACTÉRISTIQUES
DIAGNOSTICS ENERGETIQUES
LOCALISATION
NOUS CONTACTER
DEMANDE D'INFORMATIONS
Demander plus d’informations à JUNOT GRENELLE.



















