Appartement Paris 6e - 1 chambre - 85m²
75006 - Paris 6e
DESCRIPTIF
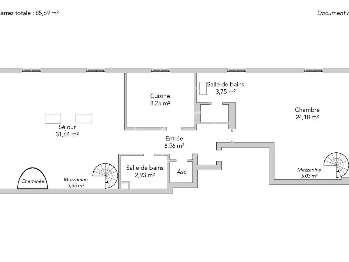
Situé au cœur d'une rue piétonne préservée et calme.Au cinquième et dernier étage par ascenseur privatif d'un immeuble du XVIe siècle dans le quartier d'Odéon, ce très bel appartement plein de charme, d'une superficie de 85,69m² loi Carrez et 115,57m² au sol, bénéficie d'une vuedégagée et baigné de soleil.Aménagé en deux pièces et mezzanine, il comporte un spacieux espace à vivre avec cheminée, un salon, une salle à manger et une cuisine ouverte, une grande suite avec salle de bains (douche et baignoire) et mezzanine avec bureau.
Une autre mezzanine avec un couchage d'appoint se trouve au-dessus du salon ainsi qu'une salle de bains.
- Emplacement privilégié - Rue piétonne calme à proximité des commerces et théâtres.
- Rénovation de qualité - Agencement moderne tout en préservant le charme classique du XVIe siècle.
Paris 6e - ODÉON / MONNAIE - Appartement à vendre
Les informations sur les risques auxquels ce bien est exposé sont disponibles sur le site Géorisques :
Réf : 831JFPFRA - Date : 19/02/2026
LES ATOUTS
CARACTÉRISTIQUES
DIAGNOSTICS ENERGETIQUES
LOCALISATION
NOUS CONTACTER
DEMANDE D'INFORMATIONS
Demander plus d’informations à JUNOT FINE PROPERTIES.












