Appartement Paris 6e - 198m²
75006 - Paris 6e
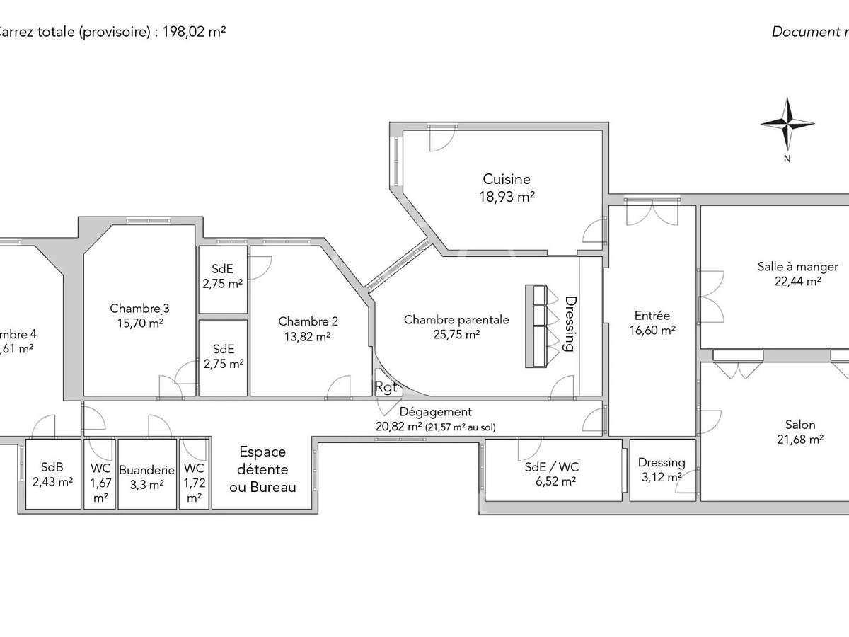
DESCRIPTIF
À la lisière des 5ᵉ et 6ᵉ arrondissements, à proximité immédiate du jardin du Luxembourg, cet appartement de 198,02 m² loi Carrez, situé en rez-de-chaussée d’un bel immeuble ancien parfaitement entretenu, se prête idéalement à l’exercice d’une profession libérale.Bénéficiant de volumes généreux, d’un plan rationnel et d’une rénovation récente de grande qualité, le bien offre une distribution particulièrement adaptée à un usage professionnel.La galerie d’entrée dessert une vaste double réception pouvant accueillir espaces d’attente, bureaux ou salles de consultation, prolongée par une grande cuisine dînatoire pouvant être réaménagée en salle de réunion ou espace collaborateurs.L’espace arrière, entièrement au calme sur cour végétalisée, comprend plusieurs pièces indépendantes pouvant accueillir bureaux, salles de consultation ou espaces confidentiels, chacune bénéficiant de points d’eau privatifs.Les circulations sont fluides, les volumes optimisés et l’organisation intérieure permet une séparation efficace entre espaces de réception et zones de travail.Calme, fonctionnalité et élégance caractérisent ce bien rare, idéalement situé à proximité immédiate des transports, des commerces et d’établissements réputés, offrant un cadre prestigieux et adapté à une activité libérale haut de gamme.Une cave complète cette offre.
- Superficie généreuse de 198,02 m², idéale pour professionnels.
- Rénovation récente de grande qualité avec espaces adaptés.
Lisière Paris 5e et 6e - SAINT-MICHEL / LUXEMBOURG
Les informations sur les risques auxquels ce bien est exposé sont disponibles sur le site Géorisques :
Réf : PL1892CHMDEP06 - Date : 22/01/2026
LES ATOUTS
CARACTÉRISTIQUES
DIAGNOSTICS ENERGETIQUES
LOCALISATION
NOUS CONTACTER
DEMANDE D'INFORMATIONS
Demander plus d’informations à JUNOT COMMERCIALISATION.























