Appartement Paris 6e - 5 chambres - 144m²
75006 - Paris 6e
DESCRIPTIF
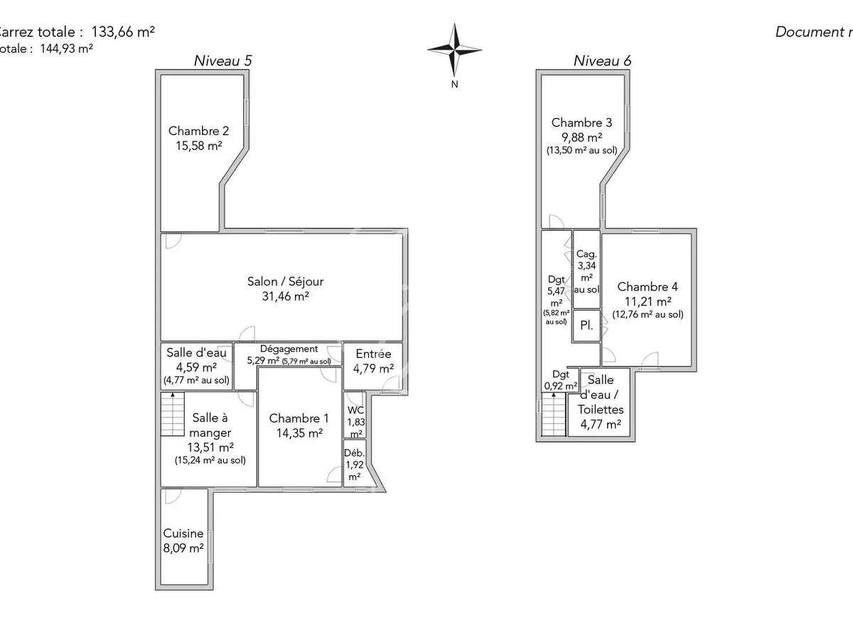
À deux pas de Saint-Germain des Prés, au calme absolu, découvrez ce superbe duplex familial situé aux derniers étages d’un immeuble ancien de standing, parfaitement entretenu, avec ascenseur et gardien à demeure.D’une superficie de 133,66m² loi Carrez, cet appartement rare séduitpar ses volumes généreux, sa luminosité et son charme.Au cinquième étage, il comporte une entrée, une cuisine indépendante aménagée, un spacieux double séjour baigné de lumière doté d'une vue dégagée sur l’église Saint-Sulpice, deux premières chambres, une salle de douche et des toilettes invités.Un escalier intérieur mène au sixième et dernier étage, qui accueille deux grandes chambres supplémentaires avec rangements ainsi qu’une seconde salle de douche avec des toilettes.Cet appartement d’exception combine emplacement privilégié, calme absolu, charme de l’ancien et fort potentiel d’aménagement, constituant un bien familial rare dans ce quartier recherché.Un débarras et une cave complètent cette offre.Possibilité d’acquérir en supplément un studio indépendant de 14,56m² loi Carrez et 18,82m² au sol, situé au sixième même étage, en face de l’appartement, au prix de 250.000euros.
- Emplacement privilégié à deux pas de Saint-Germain des Prés.
- Volumes généreux et luminosité exceptionnelle dans tout l'appartement.
Paris 6e - SAINT-GERMAIN DES PRÉS - Duplex à vendr
Les informations sur les risques auxquels ce bien est exposé sont disponibles sur le site Géorisques :
Réf : 1918CHMDEP - Date : 08/01/2026
LES ATOUTS
CARACTÉRISTIQUES
DIAGNOSTICS ENERGETIQUES
LOCALISATION
NOUS CONTACTER
DEMANDE D'INFORMATIONS
Demander plus d’informations à JUNOT 6E.


















