Appartement Paris 6e - 2 chambres - 59m²
75006 - Paris 6e
DESCRIPTIF
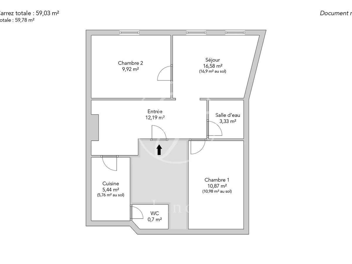
Rue Saint-Sulpice, au deuxième étage d’un immeuble bien entretenu, ce bel appartement de 59,03m² loi Carrez séduit par ses volumes et sa belle hauteur sous plafond.Il comprend une jolie entrée qui distribue un séjour lumineux agrémenté de deux grandes fenêtres, une cuisine équipée décorée par de belles mosaïques, deux chambres confortables, une salle de douche ainsi que des toilettes indépendantes.Un débarras au rez-de-chaussée complète cette offre.
- Situation privilégiée au cœur de Saint-Sulpice, proche des cafés et boutiques.
- Volumes généreux et belle hauteur sous plafond apportant une sensation d'espace.
Paris 6e - SAINT-SULPICE - Appartement à vendre -
Les informations sur les risques auxquels ce bien est exposé sont disponibles sur le site Géorisques :
Réf : 1764CHMHEN - Date : 08/01/2026
LES ATOUTS
CARACTÉRISTIQUES
DIAGNOSTICS ENERGETIQUES
LOCALISATION
NOUS CONTACTER
DEMANDE D'INFORMATIONS
Demander plus d’informations à JUNOT 6E.













