Appartement Paris 6e - 2 chambres - 93m²
75006 - Paris 6e
DESCRIPTIF
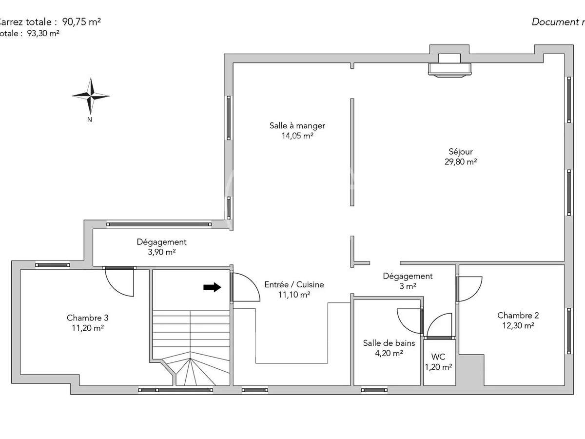
Idéalement situé, au cœur du quartier de Saint-Germain des Prés, au quatrième étage par escalier, un bel appartement de 90,75m² Carrez entièrement rénové et climatisé.Il comprend une entrée avec une belle cuisine aménagée dotée d'un magnifique plan en pierre, une salle à manger avec une jolie galerie et ses nombreuses fenêtres, un vaste séjour sur la rue agrémenté d'une bibliothèque et d'une cheminée, une chambre avec des rangements, une salle de douche, une seconde chambre sur la cour et des toilettes indépendantes.Ce bien a fait l'objet d'une rénovation de qualité avec une mise en lumière des éléments de caractère.
- Emplacement privilégié dans le quartier animé de Saint-Germain des Prés.
- Rénovation de qualité avec des éléments de caractère mis en valeur.
Paris 6e - MAZARINE / SAINT-GERMAIN DES PRÉS - App
Les informations sur les risques auxquels ce bien est exposé sont disponibles sur le site Géorisques :
Réf : 1924CHMGIR - Date : 08/01/2026
CARACTÉRISTIQUES
DIAGNOSTICS ENERGETIQUES
LOCALISATION
NOUS CONTACTER
DEMANDE D'INFORMATIONS
Demander plus d’informations à JUNOT 6E.















