Appartement Paris 6e - 5 chambres - 172m²
75006 - Paris 6e
DESCRIPTIF
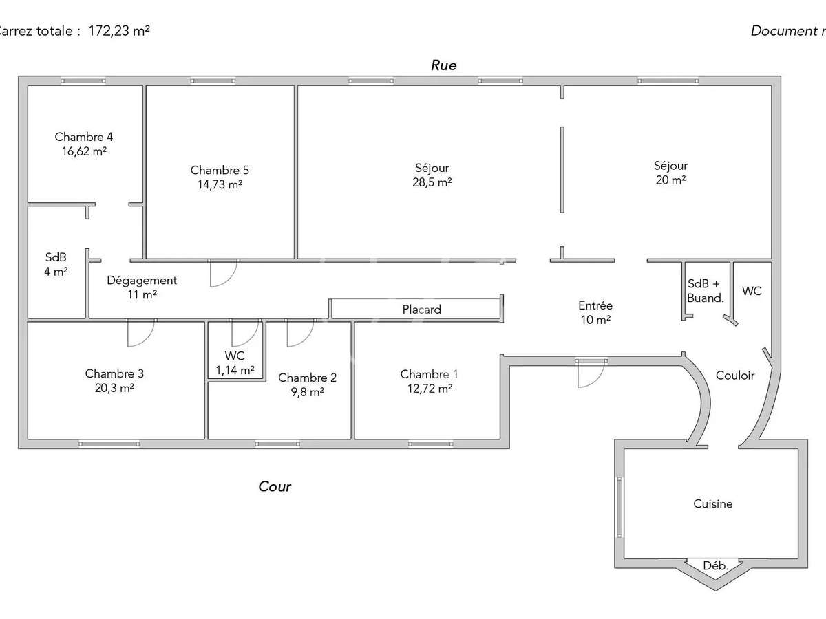
Idéalement situé, au cœur du 6e arrondissement et proche des commerces, des transports et des écoles, au premier étage par ascenseur d'une copropriété ancienne, découvrez un appartement familial au plan optimal de 172,23m² loi Carrez.Ce bien au charme typiquement haussmannien comporte une entrée, un spacieux séjour avec un espace salle à manger, dotés de 3,10m de hauteur sous plafond et de remarquables moulures, une cuisine dînatoire complétée par un cellier, trois chambres sur cour et deux chambres sur rue dont une agrémentée de sa salle de bains, toilettes indépendantes, une seconde salle de bains avec un espace buanderie et des secondes toilettes indépendantes.Cet appartement lumineux et équipé de nombreux rangements est en très bon état.Deux caves sont incluses.
- Emplacement privilégié au cœur d'un quartier vivant et dynamique.
- Charme haussmannien avec hauteur sous plafond et moulures magnifiques.
Paris 6e - RENNES / ASSAS - Appartement à vendre -
Les informations sur les risques auxquels ce bien est exposé sont disponibles sur le site Géorisques :
Réf : 1828CHMGIR - Date : 28/11/2025
LES ATOUTS
CARACTÉRISTIQUES
DIAGNOSTICS ENERGETIQUES
LOCALISATION
NOUS CONTACTER
DEMANDE D'INFORMATIONS
Demander plus d’informations à JUNOT 6E.
















