Appartement Paris 4e - 2 chambres - 122m²
75004 - Paris 4e
DESCRIPTIF
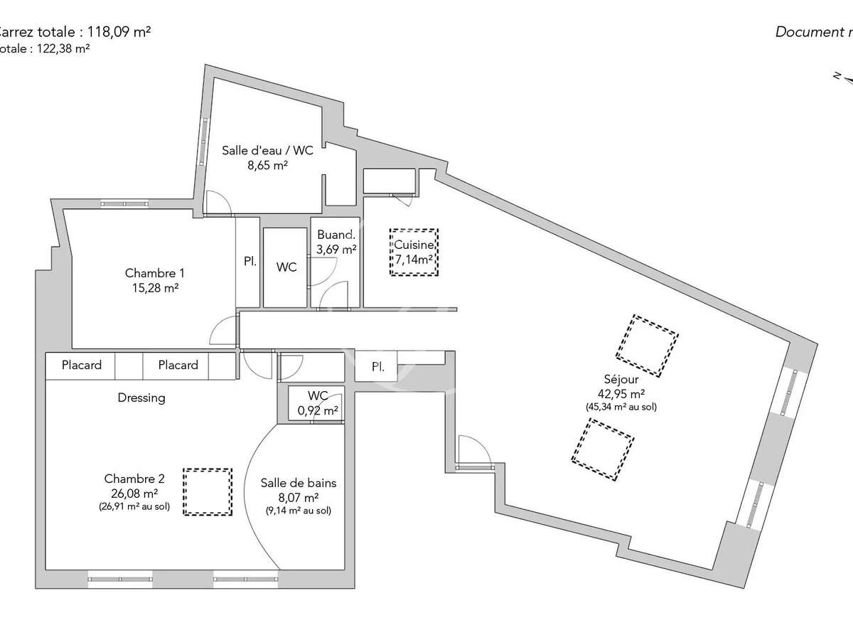
Au cœur de Paris, sur l'Île de la Cité, magnifique appartement de 118,09m² loi Carrez et 122,38m² au sol, a bénéficié d'une rénovation ultra luxueuse, alliant avec subtilité le charme de l'ancien et le confort moderne.
Au quatrième et dernier étage avec ascenseur d'un bel immeuble, cet appartement propose : une galerie d'entrée menant à une cuisine aménagée ainsi qu'une vaste pièce de vie de 43m² et 4 mètres de hauteur sous plafond offrant une vue imprenable sur les deux tours et la flèche de Notre-Dame, deux suites avec salle de bains et toilettes, une buanderie et des toilettes invités.Traversant et baigné de lumière, il dévoile une atmosphère digne d'une suite d'hôtel, sublimée par des tonalités subtiles et des menuiseries sur mesure : appartement vendu meublé.
Climatisation, calme absolu et prestations haut de gamme.
Copropriété sécurisée et gardiennée.
Une cave complète cette offre.
Un parking boxé en sus.
au prix de 100.000 €.
- Rénovation ultraluxueuse alliant ancien et moderne.
- Vue imprenable sur les tours de Notre-Dame depuis le salon.
PARIS - ÎLE DE LA CITE / NOTRE DAME - 118,09m² Car
Les informations sur les risques auxquels ce bien est exposé sont disponibles sur le site Géorisques :
Réf : 2665MONVIQ - Date : 28/11/2025
LES ATOUTS
CARACTÉRISTIQUES
DIAGNOSTICS ENERGETIQUES
LOCALISATION
NOUS CONTACTER
DEMANDE D'INFORMATIONS
Demander plus d’informations à JUNOT MARAIS.






















