Appartement Paris 18e - 4 chambres - 270m²
75018 - Paris 18e
DESCRIPTIF
Avenue Junot.
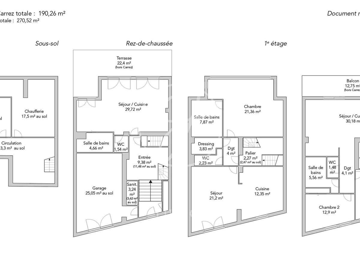
Au sein de l’une des adresses les plus recherchées de Montmartre, hôtel particulier construit en 1950 par l'architecte Lucien Daboval développant 190,26m² habitables (270,52m² au sol) et bénéficiant de deux terrasses.
Élevé sur trois niveaux principaux desservispar un bel escalier d’origine, il offre une distribution familiale et de beaux volumes comme suit:En rez-de-chaussée, une entrée dessert une spacieuse chambre ouvrant de plain-pied sur une terrasse arborée, une salle de bains, une cuisine et des toilettes indépendantes.Au premier étage, un séjour aux volumes remarquables, sublimé par une hauteur sous plafond exceptionnelle de 3,80m, avec cuisine ouverte et vue dégagée sur l’avenue Junot et ses arbres.
Côté cour, une chambre avec sa salle de bains attenante, rangements et toilettes.Au deuxième étage, un salon baigné de lumière ouvrant sur une vaste terrasse exposée sud, une cuisine équipée, deux chambres, une salle de bains et des toilettes indépendantes.En sous-sol, un très grand espace buanderie et cave.Un vaste garage, accessible directement depuis la rue ainsi qu'un très grand espace buanderie et cave en sous-sol complètent ce bien d’exception.Cet hôtel particulier offre un potentiel remarquable d’aménagement sur la plus belle avenue du quartier.
Très rare à la vente.
EXCLUSIVITÉ.
- Haut plafond de 3,80m offrant une ambiance spacieuse et lumineuse.
- Deux terrasses pour profiter de l'extérieur en toute tranquillité.
Paris 18e - AVENUE JUNOT - Hôtel Particulier à ven
Les informations sur les risques auxquels ce bien est exposé sont disponibles sur le site Géorisques :
Réf : A5707JUNORM - Date : 08/01/2026
LES ATOUTS
CARACTÉRISTIQUES
DIAGNOSTICS ENERGETIQUES
LOCALISATION
NOUS CONTACTER
DEMANDE D'INFORMATIONS
Demander plus d’informations à JUNOT MONTMARTRE.
















