Appartement Paris 18e - 4 chambres - 121m²
75018 - Paris 18e
DESCRIPTIF
Au cœur du quartier prisé de Montmartre, à deux pas des commerces et des transports et de l'avenue Junot, magnifique duplex au sein d'un immeuble bien entretenu.
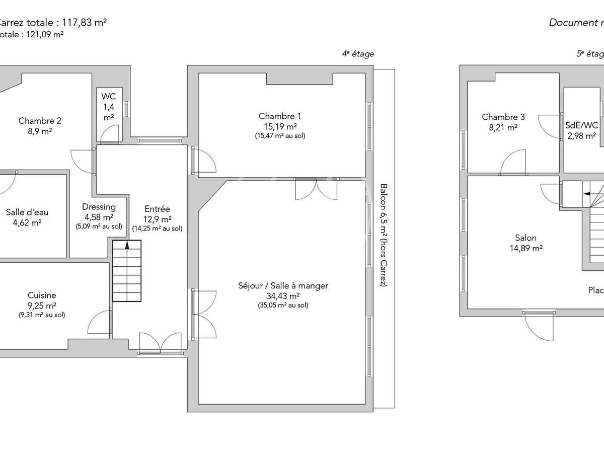
Situé aux quatrième et cinquième étages (derniers) par ascenseur, ce duplex lumineux de 117,83m² loi Carrez conjugue charmede l’ancien et modularité contemporaine.Le quatrième étage se compose d'une entrée, d'un vaste double séjour ouvrant sur un balcon filant, de deux spacieuses chambres, d'une cuisine séparée en face de la pièce de réception, d'une salle de douche, d'un dressing et de toilettes indépendantes.Par un escalier intérieur ou via une entrée indépendante au cinquième étage (accessible par ascenseur), on accède à un agréable deux-pièces composé d’un séjour avec cuisine ouverte, d'une chambre et d'une salle de douche avec toilettes (possibilité de créer deux chambres au 5e).Bénéficiant d’une belle luminosité et du calme d’un dernier étage, ce bien en bon état offre un cadre de vie idéal pour une famille, un espace indépendant pour un adolescent ou un bureau.
Plan modulable.
Belle hauteur sous plafond et charme de l'ancien conservé.Une cave complète ce bien.
- Emplacement privilégié dans Montmartre, proche des commerces et transports.
- Duplex lumineux avec balcon, idéal pour des moments de détente.
Paris 18e - CAULAINCOURT / JUNOT - Appartement à v
Les informations sur les risques auxquels ce bien est exposé sont disponibles sur le site Géorisques :
Réf : 5720JUNBAI - Date : 08/01/2026
LES ATOUTS
CARACTÉRISTIQUES
DIAGNOSTICS ENERGETIQUES
LOCALISATION
NOUS CONTACTER
DEMANDE D'INFORMATIONS
Demander plus d’informations à JUNOT MONTMARTRE.






















