Appartement Paris 18e - 2 chambres - 160m²
75018 - Paris 18e
DESCRIPTIF
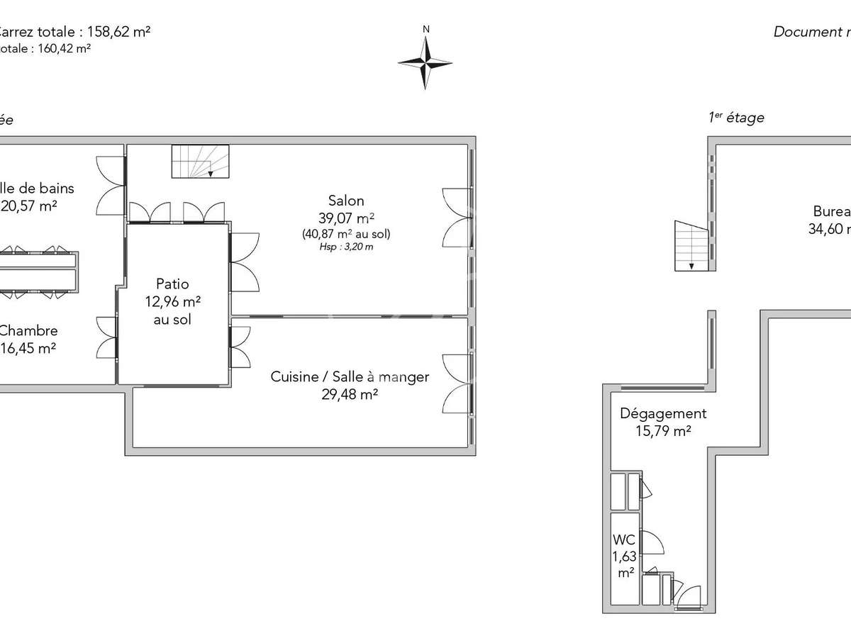
Niché au sein d'une des copropriétés les plus recherchées des Abbesses, somptueux appartement en duplex, comme une maison, ouvert sur deux espaces extérieurs, d'une superficie de 158,62m² loi Carrez et 160,42m² au sol.
Ce bien remarquablement rénové, propose, au premier niveau, un vaste espace de vie parfaitement aménagé avec cuisine dînatoire et séjour traversant prolongé de deux terrasses.
Côté nuit, une chambre principale aménagée en suite.
Au second niveau, un grand bureau transformable en deux chambres et une salle de bains.
Bien exceptionnel, rarement disponible à Montmartre.
- Emplacement privilégié au cœur des Abbesses, Montmartre.
- Vastes espaces extérieurs avec deux terrasses intimistes.
Paris 18e - BLANCHE - Duplex à vendre - 5 pièces -
Les informations sur les risques auxquels ce bien est exposé sont disponibles sur le site Géorisques :
Réf : 3237STGMIC - Date : 28/11/2025
LES ATOUTS
CARACTÉRISTIQUES
DIAGNOSTICS ENERGETIQUES
LOCALISATION
NOUS CONTACTER
DEMANDE D'INFORMATIONS
Demander plus d’informations à JUNOT SAINT GEORGES.


















