Appartement Paris 17e - 3 chambres - 193m²
75017 - Paris 17e
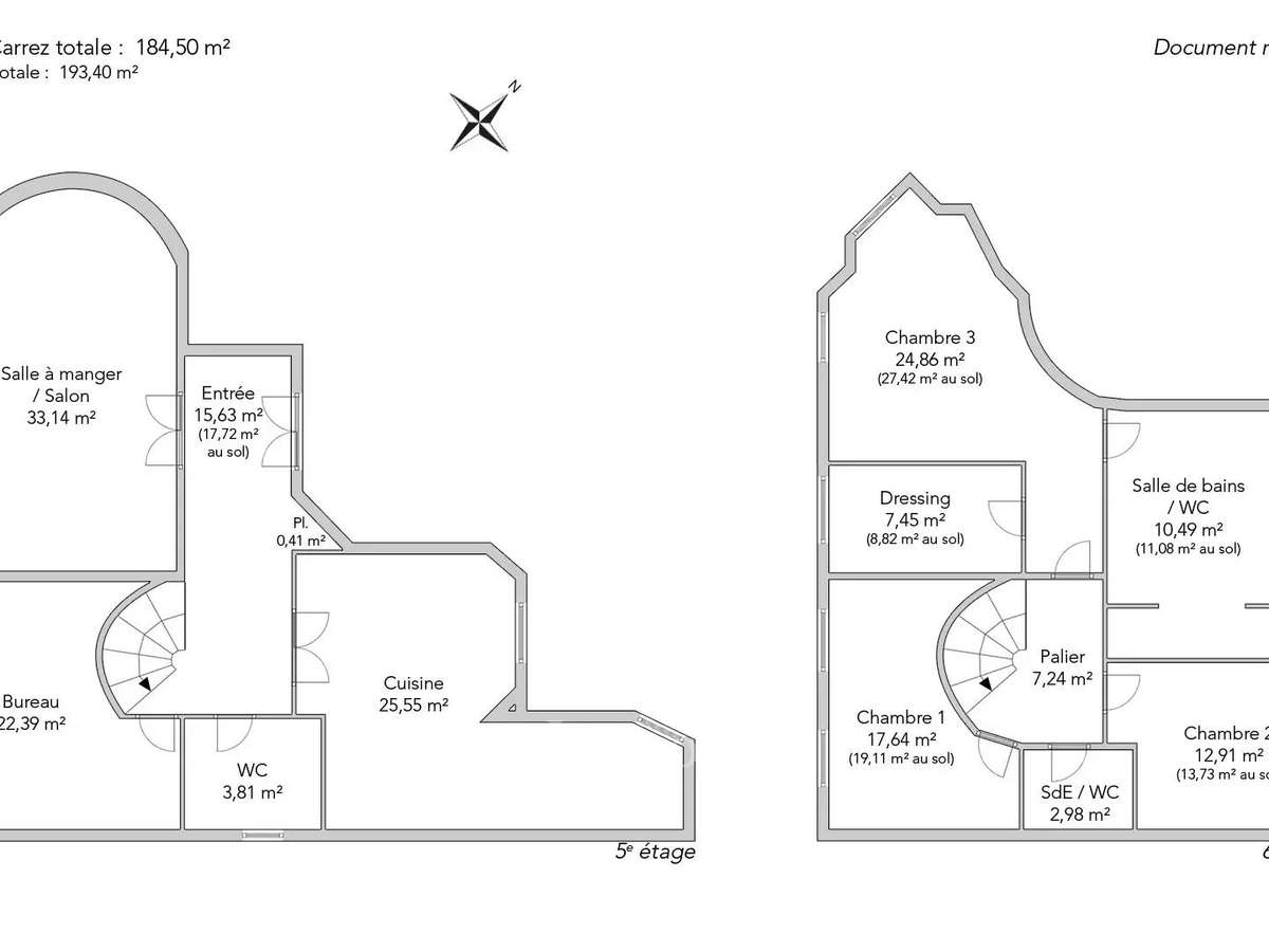
DESCRIPTIF
Rue Sergent Hoff, à proximité des transports, des commodités et des écoles, dans un immeuble Haussmannien de grand standing, superbe duplex de 184,50m² loi Carrez situé au cinquième et dernier étage par ascenseur.Dans un esprit maison, cet appartement traversant comporte au premier niveau une galerie d’entrée, une double réception baignée de lumière ouvrant sur un balcon avec une vue dégagée exposée sud-ouest, une superbe cuisine/salle à manger, une agréable chambre et des toilettes invités.À l'étage, une sublime suite parentale avec une grande chambre d'angle, son vaste dressing et sa salle de bains; deux autres agréables chambres et une salle de douche.
Une double cave complète cette offre.
Possibilité d'acquérir en supplément un parking à proximité immédiate.Vous serez séduit par les très beaux volumes, la luminosité, et le charme indéniable qui se dégage de cet appartement unique.
Sectorisation Pierre de Ronsard.EXCLUSIVITÉ.
- Superbes volumes. Appartement spacieux et lumineux à l'ambiance chaleureuse.
- Emplacement idéal. Proche des transports, écoles et commodités.
Paris 17e - SERGENT HOFF / NIEL - Duplex à vendre
Les informations sur les risques auxquels ce bien est exposé sont disponibles sur le site Géorisques :
Réf : 2835WAGBOU - Date : 08/04/2026
LES ATOUTS
CARACTÉRISTIQUES
DIAGNOSTICS ENERGETIQUES
LOCALISATION
NOUS CONTACTER
DEMANDE D'INFORMATIONS
Demander plus d’informations à JUNOT WAGRAM PEREIRE.





















