Appartement Paris 17e - 1 chambre - 85m²
75017 - Paris 17e
DESCRIPTIF
LA PLAINE MONCEAU.
BLD PEREIRE/MALESHERBES.
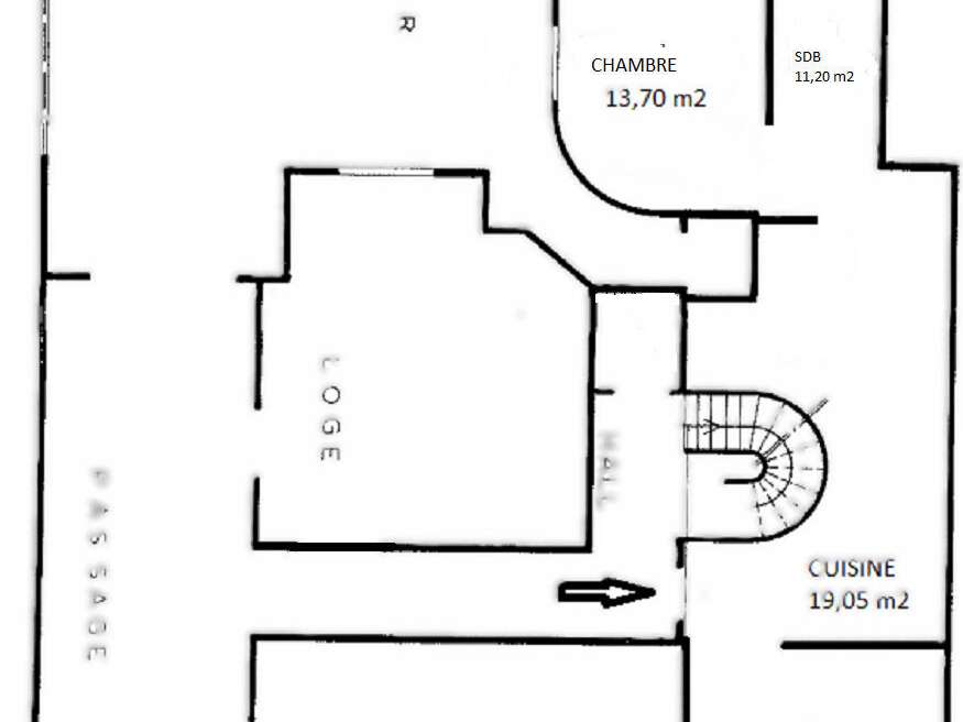
Dans un bel immeuble haussmannien de 1899 bien entretenu et sécurisé avec gardienne et aux parties communes soignées, un appartement en rez-de-chaussée de 3 pièces et d'une surface carrez de 84,05 m2 offrant une entrée sur cuisine équipée, une salle à manger, un séjour avec cheminée/trumeau, une chambre, une salle de bain/douche, WC.
Dressing.
Parquet en point de Hongrie, moulures, 3,20 m de hauteur sous plafond.
CAVE.
DPE D.
Professions libérales autorisées.
Charges de copropriété 260 Euro/mois.
Copropriété de 14 lots principaux.
Pas de procédure en cours.
Métro Wagram.
Contact direct 01 44 01... Muriel Garnreiter (E.I) , RSAC 2018AC01 44 01....
(RDC) Muriel GARNREITER (EI) Agent Commercial - Numéro RSAC : - .
- Immeuble haussmannien bien entretenu avec gardienne.
- Volumes généreux avec 3,20 m de hauteur sous plafond.
CHARMANT 3 PIECES LA PLAINE MONCEAU
Les informations sur les risques auxquels ce bien est exposé sont disponibles sur le site Géorisques :
Réf : 253768RAX4_59347233 - Date : 15/01/2026
CARACTÉRISTIQUES
COPROPRIÉTÉ
DIAGNOSTICS ENERGETIQUES
LOCALISATION
NOUS CONTACTER
DEMANDE D'INFORMATIONS
Demander plus d’informations à Rez-de-chaussée.












