Appartement Paris 16e - 2 chambres - 98m²
75016 - Paris 16e
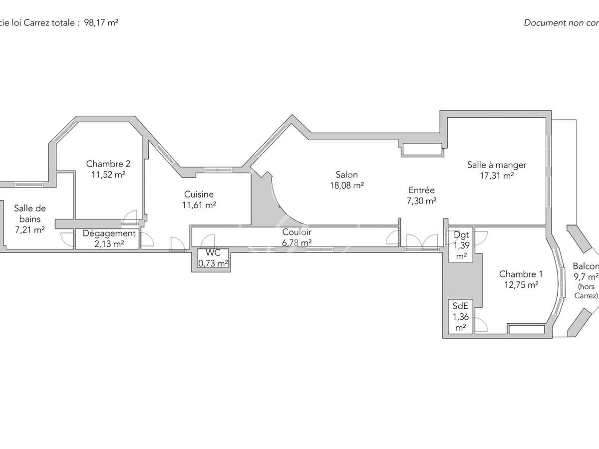
DESCRIPTIF
Au sixième étage par ascenseur d'une copropriété bien entretenue, charmant appartement de 98,17m² loi Carrez avec balcon.Traversant et lumineux, il comprend, côté réception, un séjour, une salle à manger, une cuisine indépendante et un cabinet de toilette.Sa partie nuitoffre deux chambres et une salle de bains.Un large balcon est accessible par le séjour et la chambre principale.Une cave complète ce bien.Gardien à demeure.Situé au calme, à proximité des transports, commerces et écoles.
- Balcon spacieux avec accès depuis le séjour et la chambre principale.
- Construction de qualité, dans une copropriété bien entretenue avec gardien.
Paris 16e - PASSY - Appartement à vendre - 4 pièce
Les informations sur les risques auxquels ce bien est exposé sont disponibles sur le site Géorisques :
Réf : 2312PASFAR - Date : 28/03/2026
LES ATOUTS
CARACTÉRISTIQUES
DIAGNOSTICS ENERGETIQUES
LOCALISATION
NOUS CONTACTER
DEMANDE D'INFORMATIONS
Demander plus d’informations à JUNOT PASSY- LA MUETTE.

























