Appartement Paris 16e - 2 chambres - 131m²
75016 - Paris 16e
DESCRIPTIF
Paris XVI - Jasmin - À deux pas de l’avenue Mozart.
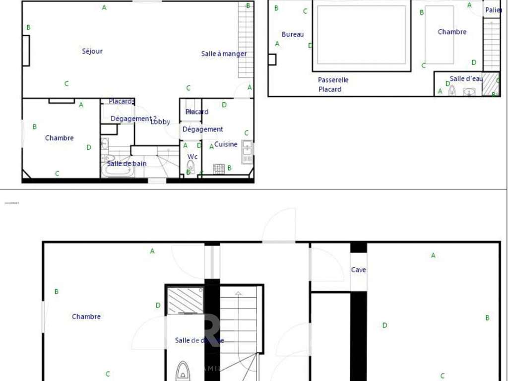
abritant seulement deux appartements, ce duplex aux 3e et 4e étages d’environ 130 m² (122 m² Carrez) séduit par sa luminosité, ses volumes et son agencement fonctionnel.
Le 1er niveau s'ouvre sur une entrée, et accueille un séjour cathédrale prolongé par un espace dînatoire, une cuisine indépendante, une chambre avec salle de bains et de nombreux rangements.
À l’étage : une chambre en mezzanine, un bureau et une salle d’eau.
Un studio en sous-sol avec accès indépendant et une cave complètent ce bien.
Nombreux rangements intégrés, cachet certain, calme absolu, à proximité immédiate des écoles et des commerces de l’avenue Mozart.
Un bien rare, entre maison et appartement, à l’abri des regards.
Des travaux de rénovation sont à prévoir.
Place de parking à proximité directe en sus.
- Duplex lumineux avec volumes généreux et agencement fonctionnel.
- Proximité immédiate des écoles et commerces de l’avenue Mozart.
Duplex lumineux "comme une maison"
Les informations sur les risques auxquels ce bien est exposé sont disponibles sur le site Géorisques :
Réf : KP1-10761 - Date : 03/03/2026
CARACTÉRISTIQUES
DIAGNOSTICS ENERGETIQUES
LOCALISATION
NOUS CONTACTER
DEMANDE D'INFORMATIONS
Demander plus d’informations à KRETZ FAMILY REAL ESTATE.






