Appartement Paris 16e - 4 chambres - 143m²
75016 - Paris 16e
DESCRIPTIF
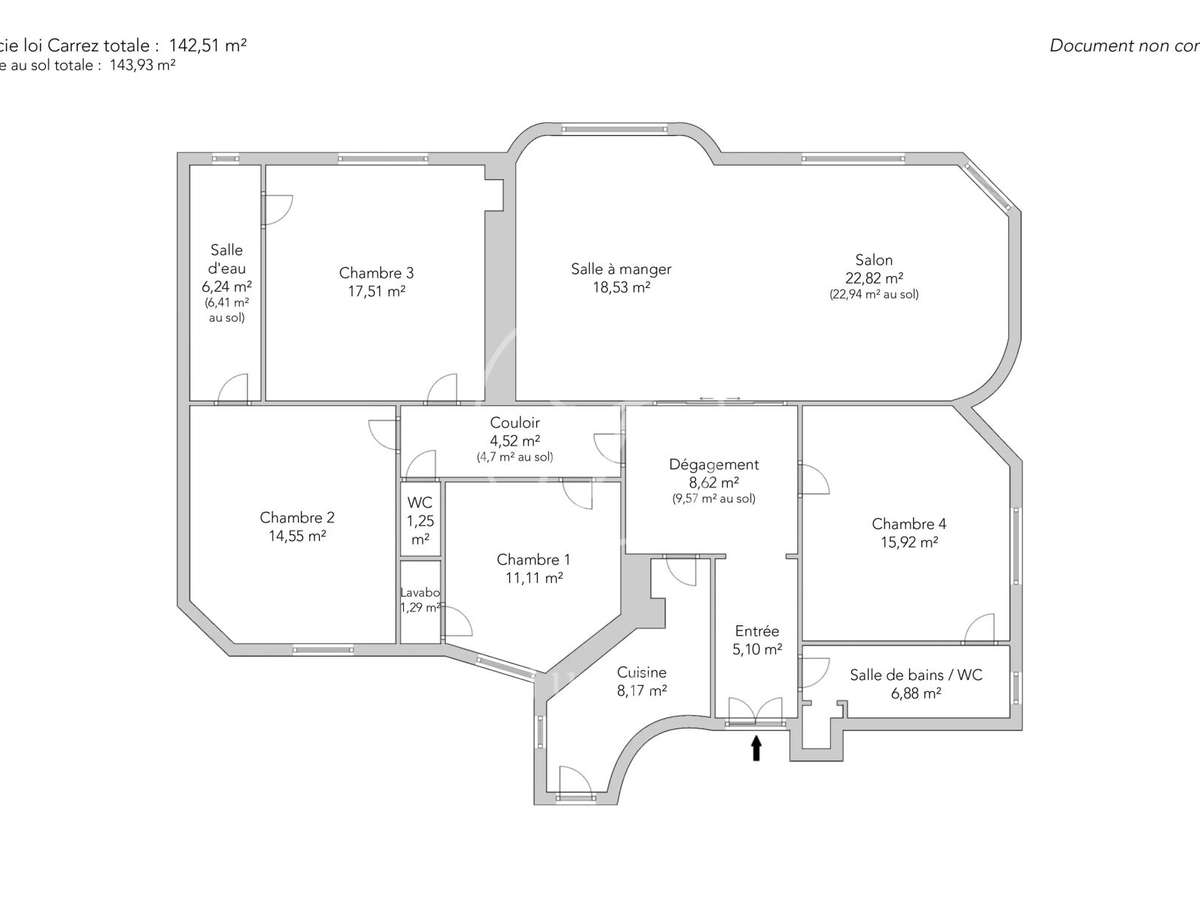
Idéalement situé à deux pas de la rue de Passy, au troisième étage d'un immeuble ancien en pierre de taille, charmant appartement de 142,51m² loi Carrez au plan parfaitement conçu.En angle et traversant, il comprend une entrée, un double séjour exposé sud-est, une cuisine séparée, quatre chambres, une salle de bains, une salle de douche et des toilettes séparées.Des travaux sont à prévoir dans l’appartement.Une cave complète ce bien.Une ou deux chambres de service sont possible en option.EXCLUSIVITÉ
- Emplacement idéal à proximité de la rue de Passy
- Belle luminosité grâce à l'exposition sud-est
Paris 16e - PASSY / TOUR - Appartement à vendre -
Les informations sur les risques auxquels ce bien est exposé sont disponibles sur le site Géorisques :
Réf : 2249PASTHI - Date : 13/01/2026
LES ATOUTS
CARACTÉRISTIQUES
DIAGNOSTICS ENERGETIQUES
LOCALISATION
NOUS CONTACTER
DEMANDE D'INFORMATIONS
Demander plus d’informations à JUNOT PASSY- LA MUETTE.
















