Appartement Paris 16e - 2 chambres - 119m²
75016 - Paris 16e
DESCRIPTIF
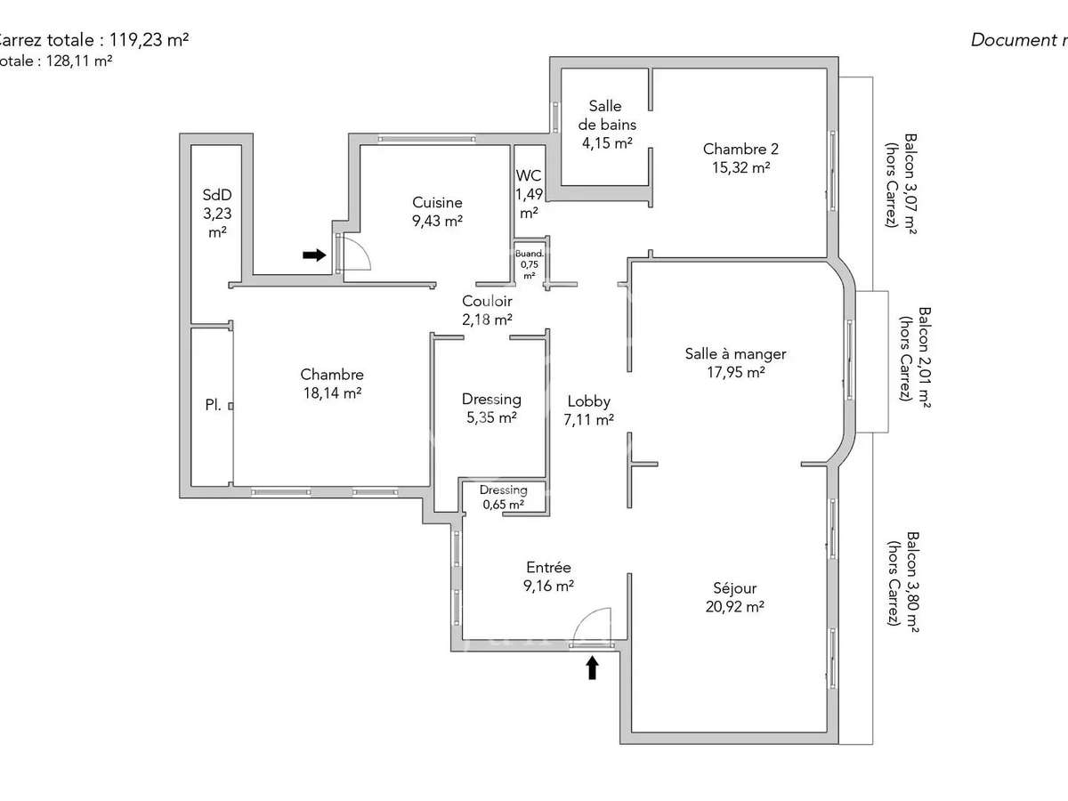
Situé dans le quartier Victor Hugo très recherché, proche des commerces et des transports.Au cinquième et dernier étage avec ascenseur d'un magnifique immeuble en pierre de taille, très bel appartement familial en parfait état de 119,23m² loi Carrez.
Climatisé, il comporte unegalerie d'entrée avec placard, un grand double séjour avec balcons, une cuisine aménagée et équipée, une grande chambre parentale avec balcon et sa salle de bains, un vaste dressing et une autre chambre sur cour avec sa salle de douche et ses toilettes.Très belle hauteur sous plafond.
Charme de l'ancien conservé: parquet, moulures et cheminée à l'éthanol.
Beaux volumes.Deux chambres de service (buanderie et bureau), un débarras et deux caves ainsi qu'un local vélo privatif complètent ce bien.Gardien à demeure.
- Emplacement privilégié dans le quartier Victor Hugo proche commerces.
- Immeuble de caractère en pierre de taille avec ascenseur.
Paris 16e - VICTOR HUGO - Appartement à vendre - 4
Les informations sur les risques auxquels ce bien est exposé sont disponibles sur le site Géorisques :
Réf : 814JFPILL - Date : 08/01/2026
LES ATOUTS
CARACTÉRISTIQUES
DIAGNOSTICS ENERGETIQUES
LOCALISATION
NOUS CONTACTER
DEMANDE D'INFORMATIONS
Demander plus d’informations à JUNOT FINE PROPERTIES.




























