Appartement Paris 16e - 73m²
75016 - Paris 16e
DESCRIPTIF
Rare.
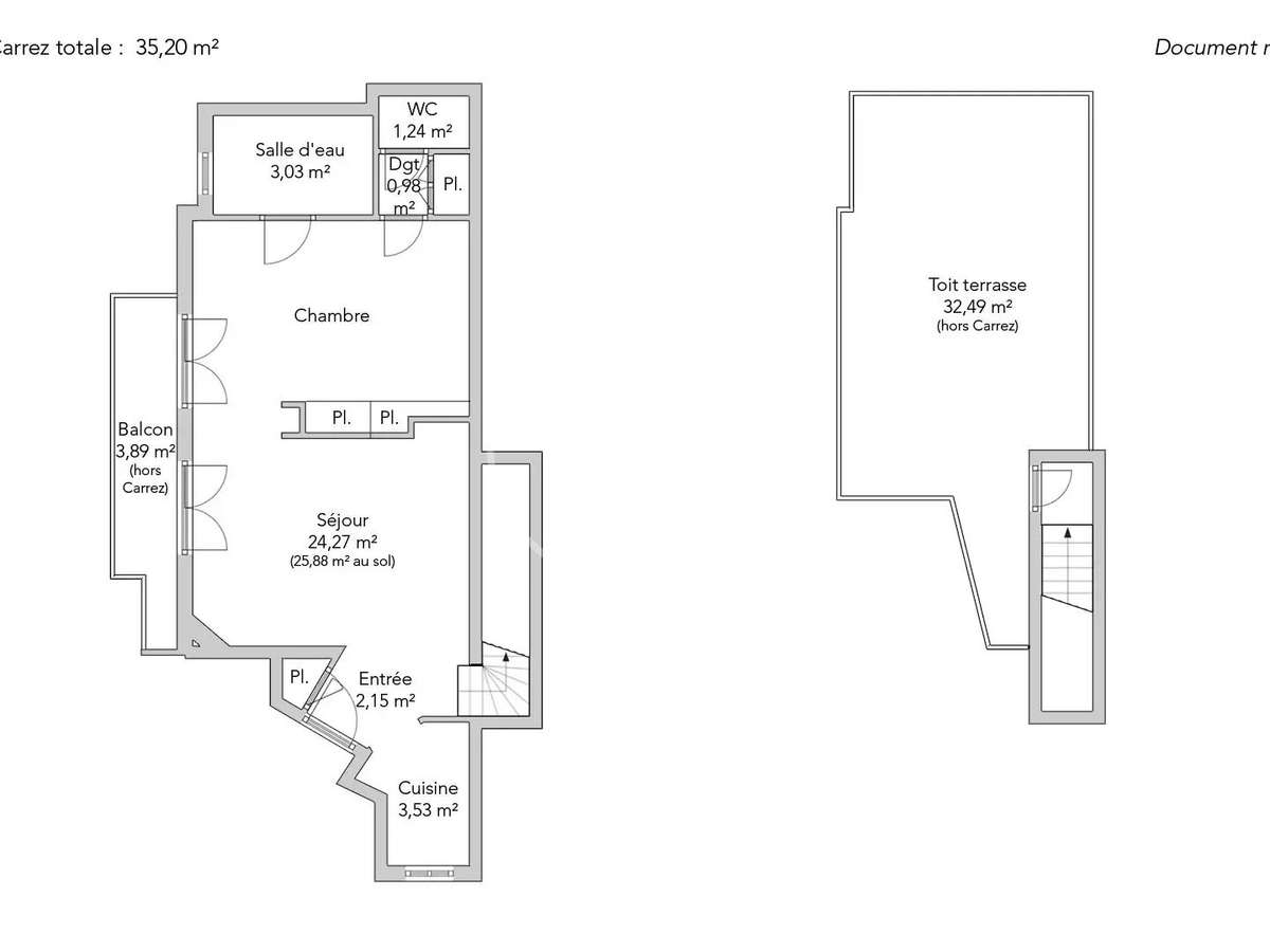
À deux pas du village d'Auteuil, niché au huitième et dernier étage par ascenseur d'une belle copropriété gardiennée, charmant studio de 35,20m² loi Carrez avec toit terrasse.Baigné de lumière, il comprend un espace nuit avec salle de douche et dressing et un espace vie avecsalon et cuisine, le tout donnant accès à un balcon orienté Sud.À l'étage, son somptueux toit terrasse de 32,49m² arboré et aménagé bénéficie d'une vue panoramique sur la tour Eiffel et tout Paris.Une cave complète ce bien.Environnement calme tout en étant à proximité des commerces et transports.
- Toit terrasse de 32,49 m² avec vue panoramique sur Paris.
- Dernier étage d'une copropriété sécurisée et gardiennée.
Paris 16e - AUTEUIL NORD - Studio à vendre - 35,20
Les informations sur les risques auxquels ce bien est exposé sont disponibles sur le site Géorisques :
Réf : 5460JASBOU - Date : 28/11/2025
LES ATOUTS
CARACTÉRISTIQUES
DIAGNOSTICS ENERGETIQUES
LOCALISATION
NOUS CONTACTER
DEMANDE D'INFORMATIONS
Demander plus d’informations à JUNOT JASMIN AUTEUIL.


















