Appartement Paris 16e - 1 chambre - 105m²
75016 - Paris 16e
DESCRIPTIF
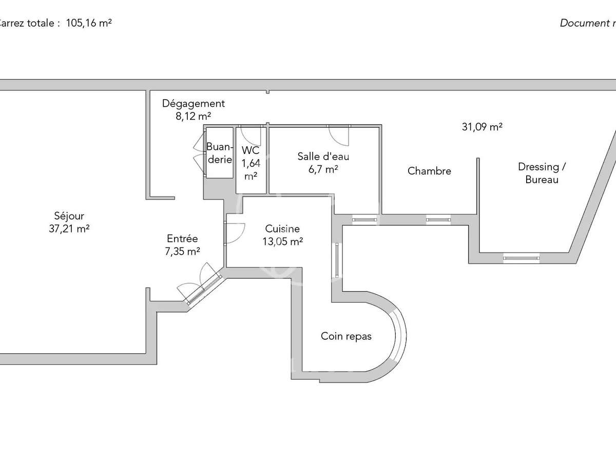
Au quatrième étage avec ascenseur d'un très bel immeuble de 1930 parfaitement entretenu et ravalé, appartement de 105,16m² loi Carrez entièrement rénové avec des matériaux de qualité.Son plan comporte une entrée, un double séjour sur rue avec balconnets, une belle cuisine dinatoire, puis une vaste suite parentale avec salle de bains, grand bureau et dressing.
Une deuxième chambre est possible.Nombreux rangements sur-mesure.Traversant est/ouest.Une cave complète ce bien.Un parking dans l'immeuble est proposé en supplément.
- Emplacement privilégié dans le 16e arrondissement, quartier paisible et chic.
- Rénovation haut de gamme avec des matériaux de qualité, prêt à emménager.
Paris 16e - EXELMANS / VARIZE - Appartement à vend
Les informations sur les risques auxquels ce bien est exposé sont disponibles sur le site Géorisques :
Réf : 2212PASCAS - Date : 28/11/2025
LES ATOUTS
CARACTÉRISTIQUES
DIAGNOSTICS ENERGETIQUES
LOCALISATION
NOUS CONTACTER
DEMANDE D'INFORMATIONS
Demander plus d’informations à JUNOT PASSY- LA MUETTE.




