Appartement Paris 15e - 2 chambres - 70m²
75015 - Paris 15e
DESCRIPTIF
Situé dans le quartier recherché de la place de Breteuil, cet élégant appartement de 70m² loi Carrez se trouve au deuxième étage par ascenseur d’un immeuble haussmannien avec gardienne.
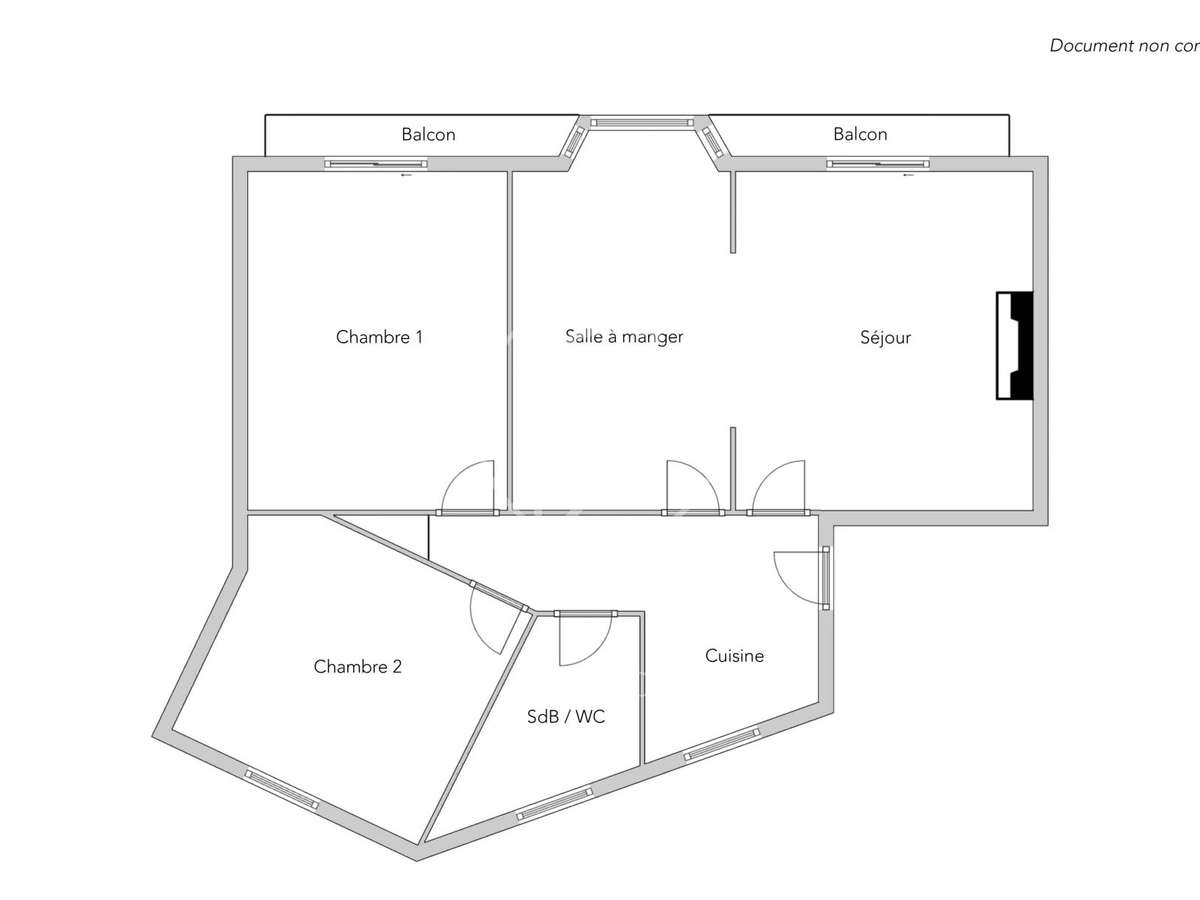
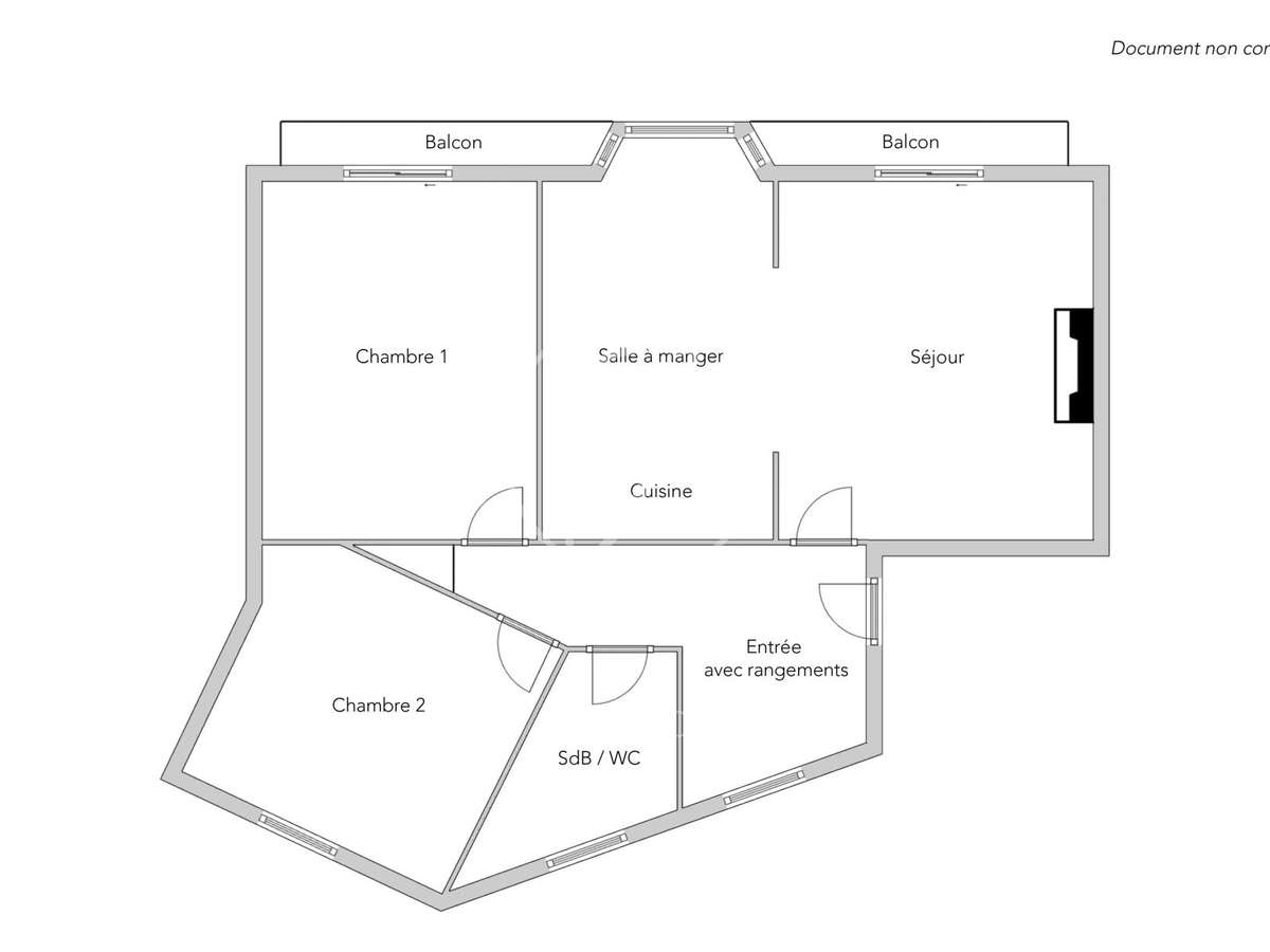
Ce bien familial bénéficie d'un plan optimisé, de vues dégagées, d’une excellente luminosité et d’une rénovation récente.Dès l'entrée, la cuisine ouverte et fonctionnelle, dotée de nombreux rangements, mène à un double séjour exposé sud-ouest et baigné de lumière.
Cette pièce de vie, prolongée par un balcon, dispose d’un vaisselier et d’un bow-window aménageable en espace bureau.L’espace nuit comprend une chambre parentale avec placards, agrémentée également d’un balcon et d’un bel ensoleillement, ainsi qu’une seconde chambre au calme sur cour.
Une salle de bains avec toilettes, un débarras et de nombreux rangements complètent l’agencement.Les éléments anciens de caractère ont été soigneusement conservés et mis en valeur: parquet, riches moulures et cheminées.Une cave complète ce bien.
- Emplacement idéal dans un quartier recherché de Paris.
- Bénéfice d'une luminosité optimale et vue dégagée.
Paris 15e - SUFFREN / ROSA BONHEUR - Appartement à
Les informations sur les risques auxquels ce bien est exposé sont disponibles sur le site Géorisques :
Réf : 3529GREBOL15 - Date : 01/04/2026
LES ATOUTS
CARACTÉRISTIQUES
DIAGNOSTICS ENERGETIQUES
LOCALISATION
NOUS CONTACTER
DEMANDE D'INFORMATIONS
Demander plus d’informations à JUNOT GRENELLE.
















