Appartement Paris 15e - 2 chambres - 115m²
75015 - Paris 15e
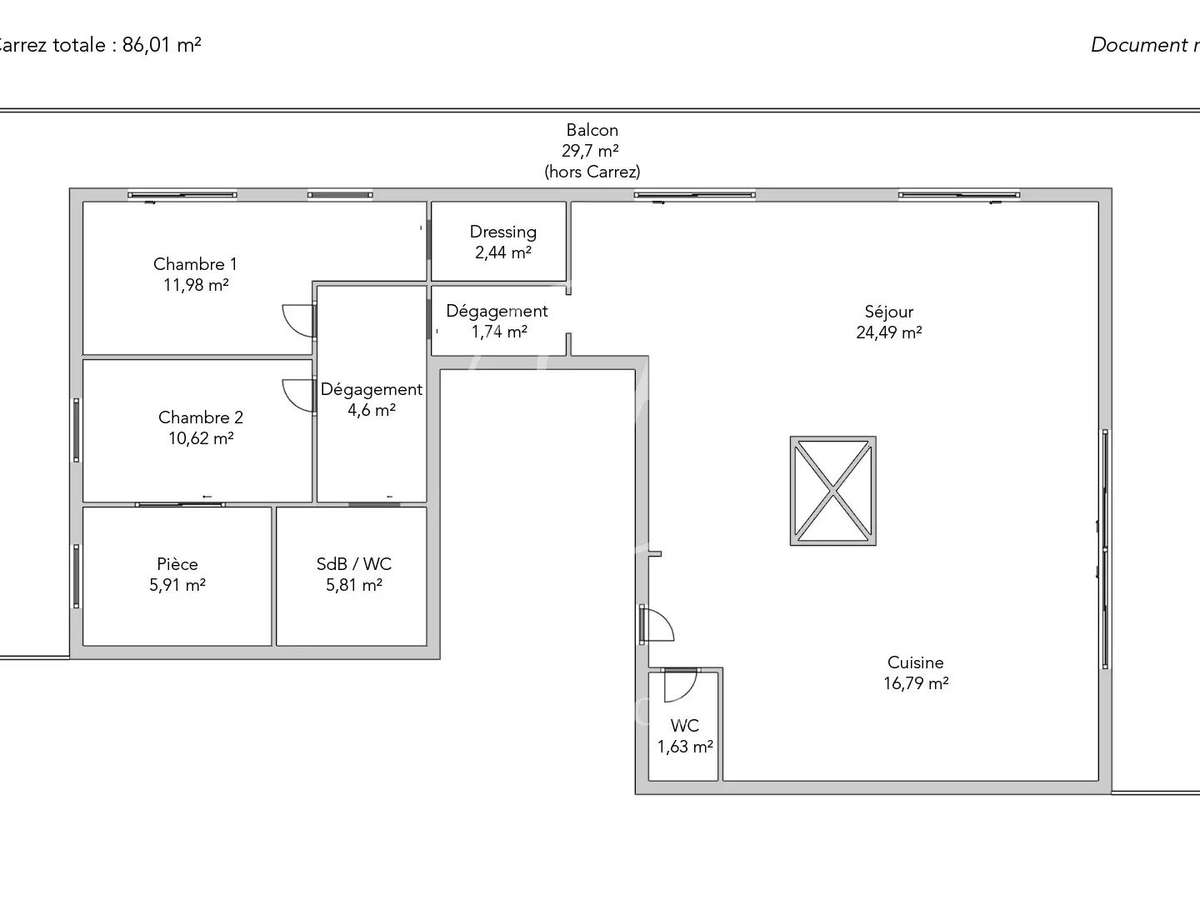
DESCRIPTIF
Ce bel appartement intégralement rénové est situé au septième et dernier étage accessible par ascenseur au sein d'une copropriété récente.D'une superficie de 86,01m² loi Carrez, il est baigné de lumière et entièrement entouré d'un balcon filant de 29,07m² au sol.Son plancompact comprend un séjour et une salle à manger avec vue panoramique sur la tour Eiffel, une cuisine semi-ouverte, deux chambres dont une avec salle de bains, une salle de douche avec des toilettes, un dressing, des toilettes indépendantes et nombreux rangements.Une cave complète ce bien rare.Ce bien bénéficie d'une localisation idéale à proximité de l'École Bilingue, des commerces, des transports et à deux minutes du Champ de Mars.
Possibilité d'un box fermé dans l'immeuble.
- Vue panoramique sur la tour Eiffel depuis le séjour.
- Balcon filant de 29,07m², parfait pour se détendre.
Paris 15e - SUFFREN / FÉDÉRATION - Appartement à v
Les informations sur les risques auxquels ce bien est exposé sont disponibles sur le site Géorisques :
Réf : 3296GREGEN15 - Date : 28/11/2025
LES ATOUTS
CARACTÉRISTIQUES
DIAGNOSTICS ENERGETIQUES
LOCALISATION
NOUS CONTACTER
DEMANDE D'INFORMATIONS
Demander plus d’informations à JUNOT GRENELLE.






















