Appartement Paris 11e - 2 chambres - 86m²
75011 - Paris 11e
DESCRIPTIF
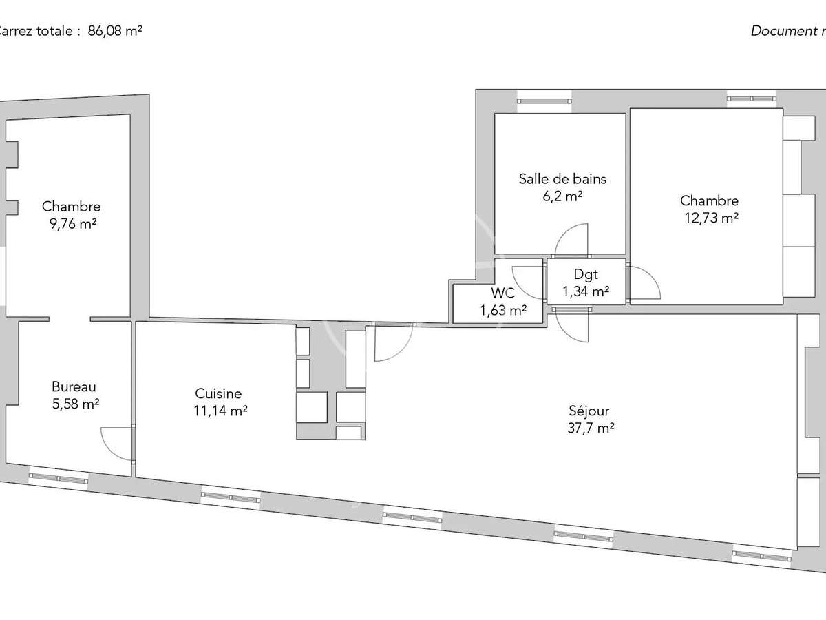
Idéalement situé à proximité des commerces, des transports et du canal Saint-Martin, cet appartement traversant de 86,08m² loi Carrez, situé au troisième étage d’un immeuble par escalier, offre un agencement optimal et une belle luminosité.En très bon état et rénové par un architecte, il comporte une vaste pièce de vie composée d'un salon et d'une salle à manger, mise en valeur par trois grandes fenêtres.
La cuisine semi-ouverte, agrémentée d’une élégante verrière, apporte une touche de modernité tout en conservant une belle convivialité.L’espace nuit comprend une grande chambre sur cour avec vue dégagée et des nombreux rangements, une deuxième chambre avec des placards intégrés, accessible depuis un bureau lumineux.La salle de bains, spacieuse et fonctionnelle, dispose d’une baignoire, d’une douche et d’une fenêtre.
Les toilettes sont séparées.Ce bien traversant, calme et lumineux allie charme, fonctionnalité et emplacement de choix.
Un local à vélo dans la copropriété.
EXCLUSIVITÉ.
- Emplacement privilégié à proximité du canal Saint-Martin et des transports.
- Rénovation de qualité par un architecte, mêlant modernité et confort.
Paris 10e - SAINT-MAUR / CANAL SAINT-MARTIN - Appa
Les informations sur les risques auxquels ce bien est exposé sont disponibles sur le site Géorisques :
Réf : 1870CHMGIR11/1137POI - Date : 02/12/2025
CARACTÉRISTIQUES
DIAGNOSTICS ENERGETIQUES
LOCALISATION
NOUS CONTACTER
DEMANDE D'INFORMATIONS
Demander plus d’informations à JUNOT 10EME.












