Appartement Paris 11e - 3 chambres - 90m²
75011 - Paris 11e
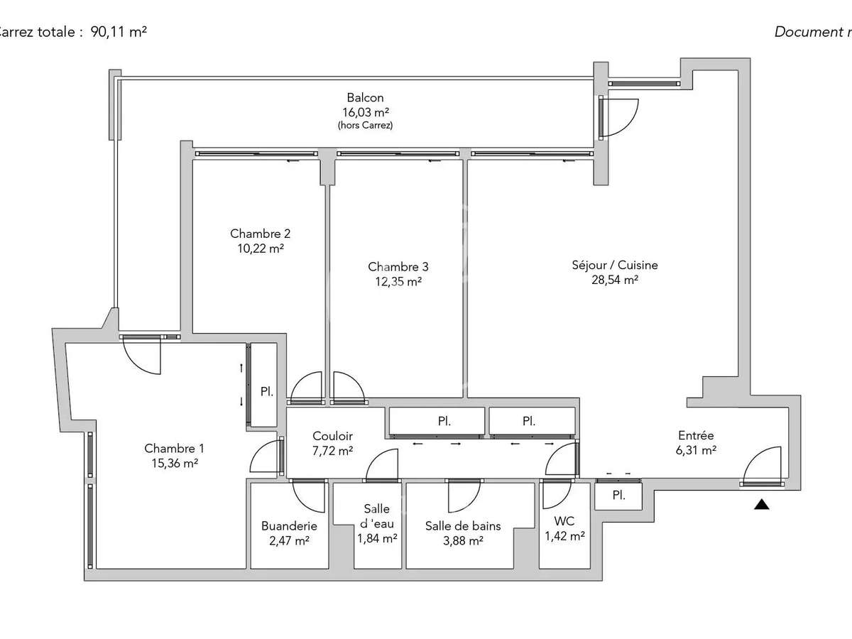
DESCRIPTIF
Dans un bel immeuble récent avec gardien et parties communes soignées, au deuxième étage avec ascenseur, cet appartement de 90,11m² loi Carrez bénéficie d'un superbe espace extérieur et d'une belle exposition est.
Le plan compact comporte une entrée avec rangements, une belle réception de 32m² ouvrant sur une terrasse d'angle de 16m² exposée est, un espace cuisine dans le séjour à aménager, trois chambres ouvrant sur la terrasse, une salle de bains avec toilettes, une salle de douche et des toilettes invités.
Une cave complète ce bien, et deux grandes places de parking côte à côte sont disponibles dans l'immeuble, en option.
EXCLUSIVITÉ.
- Superbe terrasse d'angle pour profiter des journées ensoleillées.
- Immeuble récent avec gardien et parties communes bien entretenues.
Paris 11e - RICHARD LENOIR / CHEMIN VERT - Apparte
Les informations sur les risques auxquels ce bien est exposé sont disponibles sur le site Géorisques :
Réf : 660JFPLON - Date : 28/11/2025
LES ATOUTS
CARACTÉRISTIQUES
DIAGNOSTICS ENERGETIQUES
LOCALISATION
NOUS CONTACTER
DEMANDE D'INFORMATIONS
Demander plus d’informations à JUNOT MARAIS.












