Appartement Paris 10e - 4 chambres - 157m²
75010 - Paris 10e
DESCRIPTIF
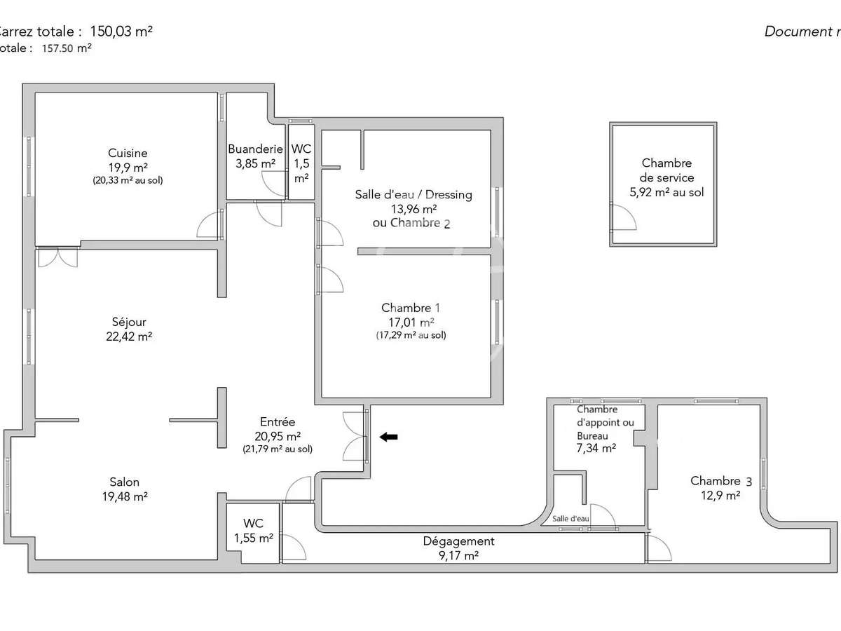
À la lisière du 9ᵉ arrondissement, dans une rue calme et recherchée du 10ᵉ, au sein d’un bel immeuble en pierre de taille avec ascenseur, seul sur le palier, superbe appartement traversant de 150,03m² loi Carrez (157,50m² au sol).
Situé au troisième étage, il a été entièrement rénové par architecte avec des matériaux de grande qualité.Il s’ouvre sur une somptueuse réception de 63m², aux volumes remarquables avec 3m de hauteur sous plafond, sublimée par parquets, moulures et cheminées.Une cuisine dînatoire parfaitement équipée, une buanderie ainsi que des toilettes invitées complètent cette partie de réception.L’espace nuit, donnant exclusivement sur cour, comprend une suite parentale au calme avec cheminée, un dressing attenant avec salle de douche (pouvant être aménagé en seconde chambre), une troisième chambre disposant également de son dressing et de sa salle de douche ainsi qu’un bureau pouvant faire office de chambre d’appoint.Des toilettes indépendantes vient compléter l’ensemble.En annexes, une chambre de service, une cave double ainsi qu’un espace de stationnement vélo.
- Superbe réception de 63 m² avec hauteur sous plafond de 3 m.
- Entièrement rénové par architecte avec des matériaux de qualité.
Paris 10ᵉ - Lisière 9ᵉ - HAUTEVILLE / CHABROL - Ap
Les informations sur les risques auxquels ce bien est exposé sont disponibles sur le site Géorisques :
Réf : 1117POIBON - Date : 06/02/2026
LES ATOUTS
CARACTÉRISTIQUES
DIAGNOSTICS ENERGETIQUES
LOCALISATION
NOUS CONTACTER
DEMANDE D'INFORMATIONS
Demander plus d’informations à JUNOT 10EME.






















