Appartement Paris 10e - 5 chambres - 196m²
75010 - Paris 10e
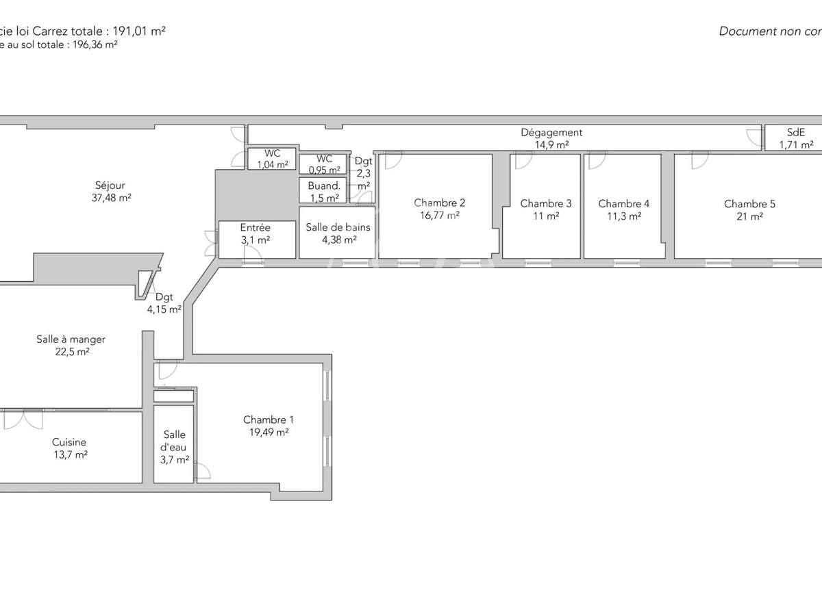
DESCRIPTIF
À quelques pas du Marais, donnant sur une rue semi-piétonne, dans un bel immeuble en pierre de taille bien entretenu, au deuxième étage noble, un appartement familial de 191,01m² Carrez, 196,36m² au sol.Le plan parfait comporte une entrée, une vaste réception donnant plein sud sur la rue, d'une grande salle à manger et une cuisine séparée entièrement équipée.Côté cour, la partie "parents" propose une chambre au calme absolu, de nombreux rangements et salle de douche en suite.La partie "enfants", elle aussi au calme, comprend quatre chambres de belles taille (au total, six chambres possibles), une salle de bains et une salle de douche.
Deux toilettes séparées.Cet appartement bénéficie de beaux volumes, d'une double exposition et d'un emplacement recherché.Rare dans le quartier.
- Emplacement privilégié dans le village Lancry, proche du Marais.
- Bel immeuble en pierre de taille bien entretenu et chargé d'histoire.
Paris 10e - VILLAGE LANCRY / JACQUES BONSERGENT -
Les informations sur les risques auxquels ce bien est exposé sont disponibles sur le site Géorisques :
Réf : 3473BREPRI10 - Date : 14/01/2026
LES ATOUTS
CARACTÉRISTIQUES
DIAGNOSTICS ENERGETIQUES
LOCALISATION
NOUS CONTACTER
DEMANDE D'INFORMATIONS
Demander plus d’informations à JUNOT MARAIS.



















