Appartement Nice - 3 chambres - 116m²
06000 - Nice
DESCRIPTIF
NICE/ MUSICIENS: Nous vous proposons cet appartement bourgeois T4 (116 m²) avec 4 balcons à renover.Ce bien allie charme de l'ancien et confort moderne.
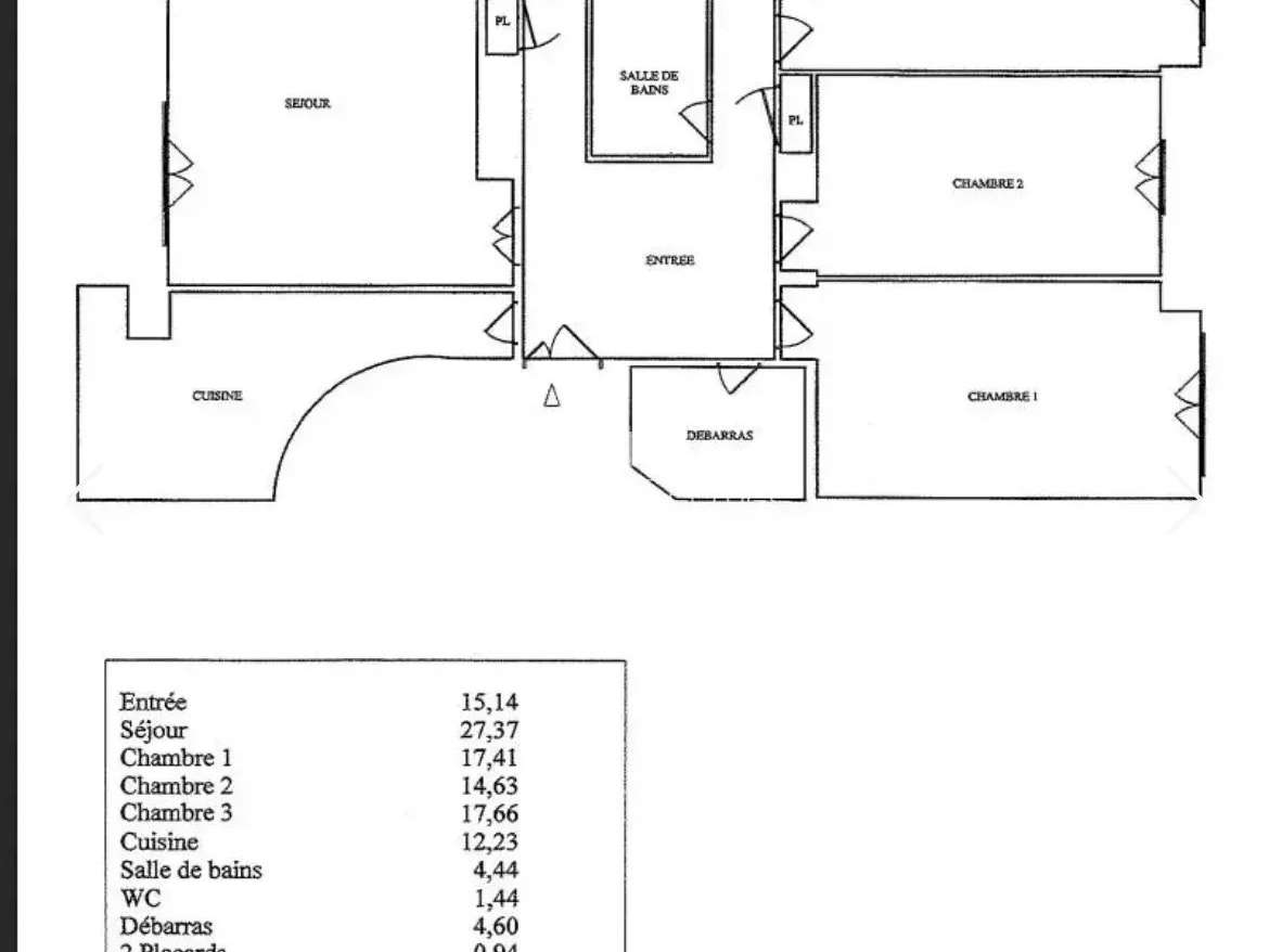
Avec une superficie généreuse de 116 m², cet appartement offre un espace de vie agréable et lumineux.Dès l'entrée, vous serezséduit par le vaste salon de 28 m², idéal pour recevoir ou se détendre en famille.
L'appartement dispose de trois chambres spacieuses, parfaites pour accueillir une famille ou pour aménager un bureau.
La salle de bain est fonctionnelle et bien agencée, offrant tout le nécessaire pour votre confort quotidien.La cuisine vous permettra de préparer vos repas dans un cadre agréable.
De plus, cet appartement bénéficie de quatre balcons, vous offrant la possibilité de profiter de l'extérieur et de la lumière naturelle tout au long de la journée, grâce à son orientation est-ouest.Le chauffage est collectif, avec un système au gaz et des radiateurs, garantissant une chaleur douce et homogène dans toutes les pièces.
Situé au deuxième étage d'un immeuble de cinq étages, cet appartement est accessible par un ascenseur.En complément, vous disposerez d'une cave pour le rangement de vos affaires.
Ce bien est situé dans une copropriété bien entretenue, offrant un cadre de vie agréable et sécurisé.
Proche du tramway et des commerces de proximité.Honoraires inclus à la charge vendeur.
- Emplacement privilégié dans le quartier dynamique des Musiciens.
- Superficie généreuse de 116 m² avec un vaste salon lumineux.
Clemenceau superbe Bourgeois 4 pièces balcons
Les informations sur les risques auxquels ce bien est exposé sont disponibles sur le site Géorisques :
Réf : 86653463 - Date : 17/02/2026
LES ATOUTS
CARACTÉRISTIQUES
DIAGNOSTICS ENERGETIQUES
LOCALISATION
NOUS CONTACTER
DEMANDE D'INFORMATIONS
Demander plus d’informations à NICE PROPERTIES PROMENADE.










