Appartement Nantes - 3 chambres
44000 - Nantes
DESCRIPTIF
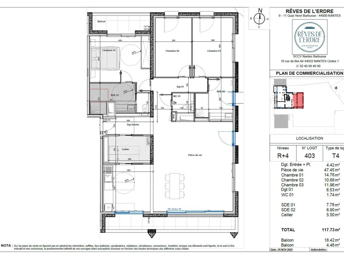
Situé au 4ᵉ étage de la résidence Rêves de l’Erdre, ce T4 de 117,7 m² séduit par sa pièce de vie spacieuse et baignée de lumière, orientée plein sud et ouverte sur un balcon de 18 m², idéal pour profiter du calme et de la vue dégagée sur les bords de l’Erdre.
L’appartement, traversant, offre un plan parfaitement équilibré.
Côté nuit, il se compose de trois chambres, dont une grande suite parentale avec salle d’eau privative et un second balcon, de 4.5m², d’une seconde salle d’eau, d’un WC indépendant et d’un cellier fonctionnel.
Les prestations haut de gamme et personnalisables viennent sublimer cet espace d’exception : matériaux nobles, finitions raffinées, et deux places de stationnement boxables incluses dans le prix.
La résidence Rêves de l'Erdre se compose de 28 appartements d'exception du T1 bis au T5 avec une situation exceptionnelle et rare à Nantes sur les bords de l'Erdre, exposée ouest, face à l'île de Versailles.
La résidence bénéficie de la signature du cabinet d'architecture de renom Carta Reichen & Robert.
Rêves de l’Erdre révèle les qualités urbaines et paysagères du lieu.
Tout comme son nom le suggère, il invite à rêver depuis son balcon ou sa terrasse en regardant l’Erdre.
- Balcon spacieux de 18 m² pour profiter de la vue dégagée.
- Suite parentale avec salle d’eau privative et second balcon.
Vente appartement
Les informations sur les risques auxquels ce bien est exposé sont disponibles sur le site Géorisques :
Réf : VE1302/403 - Date : 21/11/2025
LES ATOUTS
CARACTÉRISTIQUES
DIAGNOSTICS ENERGETIQUES
LOCALISATION
NOUS CONTACTER
DEMANDE D'INFORMATIONS
Demander plus d’informations à Groupe CIF.






