Appartement Levallois-Perret - 4 chambres - 247m²
92300 - Levallois-Perret
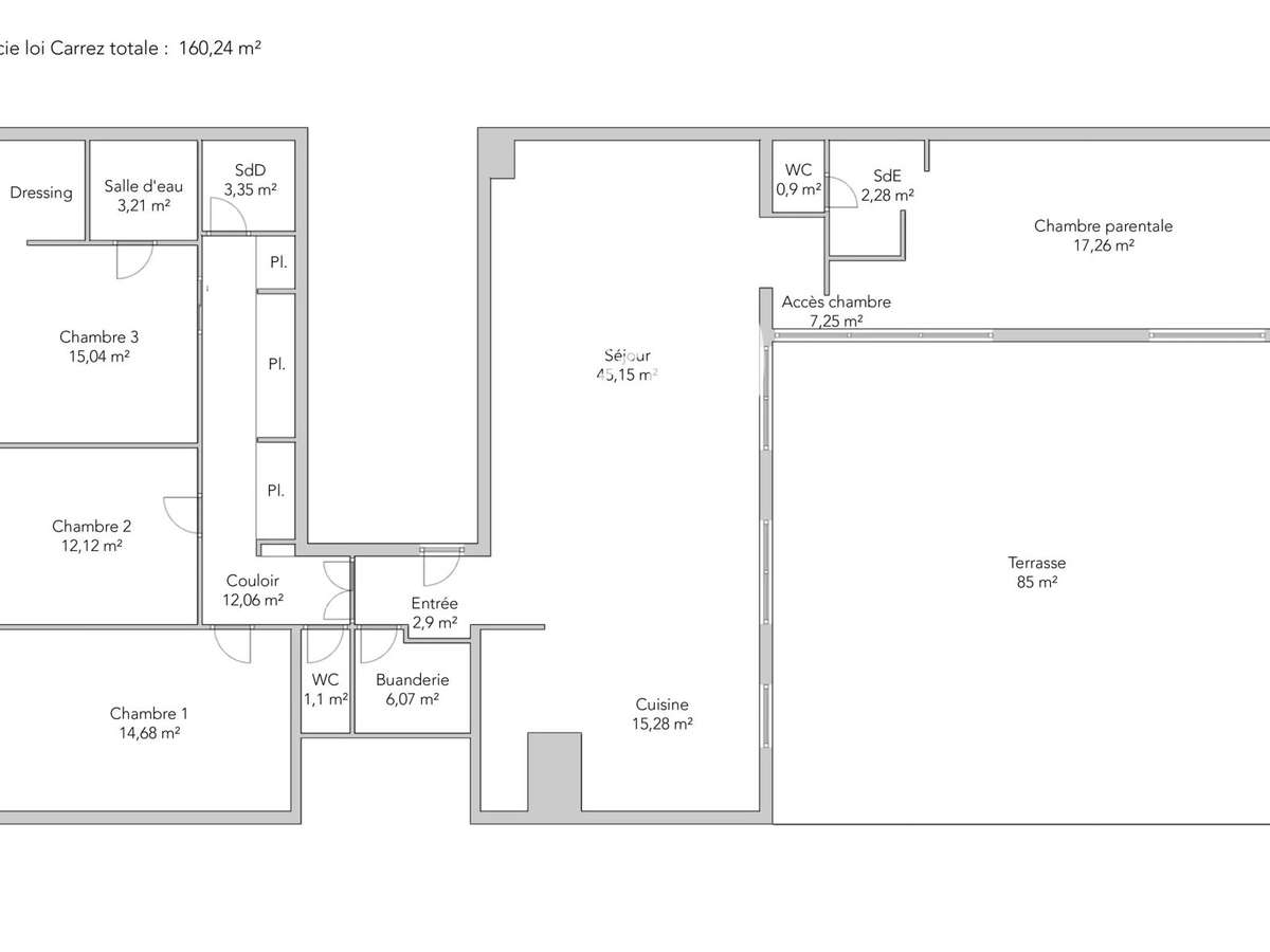
DESCRIPTIF
Au sein d’une copropriété de standing bien entretenue, au 1er étage avec ascenseur, découvrez ce bel appartement traversant de 160,24 m² loi Carrez, bénéficiant d’une superbe terrasse de 85 m².Il se compose d’une entrée, d’une buanderie, d’une cuisine équipée semi-ouverte sur un vaste séjour, de 60 m², ainsi que d’une suite parentale avec salle de douche, des toilettes séparées.
Chambre parentale et pièce de vie donnent sur la terrasse de plain-pied.L’espace nuit comprend trois chambres, deux salles de douche et deux cabinets de toilettes.L’appartement séduit par son calme, sa belle luminosité, son agencement optimisé sans perte de place et ses nombreux rangements.Deux places de parking en sous-sol complètent ce bien.Localisation recherchée, idéale pour une vie de famille, à proximité des commerces, transports et écoles.EXCLUSIVITÉ.
- Terrasse spacieuse de 85 m² idéale pour se détendre.
- Luminosité optimale grâce à son exposition traversante.
Levallois-Perret - CENTRE - Appartement à vendre -
Les informations sur les risques auxquels ce bien est exposé sont disponibles sur le site Géorisques :
Réf : 2989WAGDAH - Date : 25/03/2026
LES ATOUTS
CARACTÉRISTIQUES
DIAGNOSTICS ENERGETIQUES
LOCALISATION
NOUS CONTACTER
DEMANDE D'INFORMATIONS
Demander plus d’informations à JUNOT WAGRAM PEREIRE.























