Appartement Castries - 3 chambres - 120m²
34160 - Castries
DESCRIPTIF
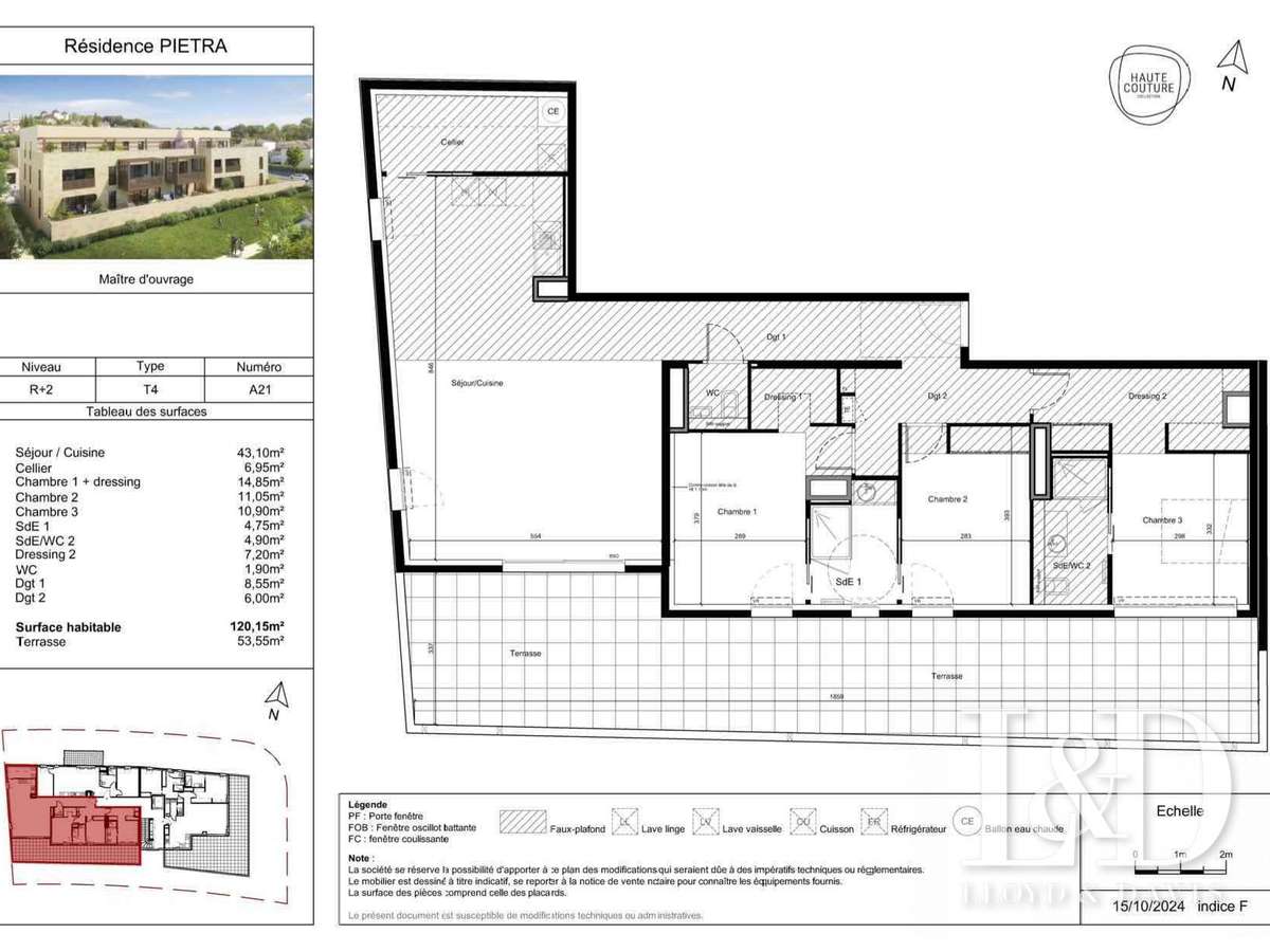
A Castries, je vous propose un bel appartement T4 de 120m² au dernier étage d'une résidence à taille humaine.
L'espace jour comprend une spacieux séjour-cuisine de 43m² augmenté d'un cellier de 7m².
La cuisine peut être séparée du séjour.
Le tout bénéficie d'un bel ensoleillement grâce à une double exposition sud et ouest.
Une baie coulissante ouvre sur une grande terrasse de 53m² et garantit un ensoleillement maximal.
L'espace nuit comprend trois chambres avec de nombreux rangements.
La chambre parentale totalise 23m² et dispose de sa salle d'eau privative avec WC et d'un grand dressing.
Les deux autres chambres communiquent avec une seconde salle d'eau par des portes coulissantes.
Les prestations sont Haute Couture : menuiseries aluminium, fermeture des volets roulants centralisée, carrelage 120x120, parquet dans les chambres, possibilité de personnaliser la teinte de peinture sur certains murs, WC suspendus, domotique ..
Vous disposez d'un double garage fermé en sous-sol et d'un local vélo.
La résidence est totalement sécurisée.
Vous êtes à 10 minutes à pied du centre village qui offre tous les services et commerces de proximité.
La ligne bus tram en cours de construction reliera bientôt Castries à Montpellier.
Vous accédez à l'autoroute A9 en quelques minutes via la sortie Baillargues.
Disponible de suite, contactez moi pour une visite.
Carole Ducoin-EI, votre consultante partenaire RSAC de Montpellier N° 832 505 465.Honoraires à la charge du vendeur.
Dans une copropriété de 31 lots.
Quote-part moyenne du budget prévisionnel 2 200 €/an.
Aucune procédure n'est en cours.
DPE vierge.
Les informations sur les risques auxquels ce bien est exposé sont disponibles sur le site Géorisques : https://www.georisques.gouv.fr.
Votre conseiller LLOYD & DAVIS : Carole DUCOINAgent commercial (Entreprise individuelle) RSAC 832 505 465 Montpellier RCP 61953760 Allianz
- Vaste terrasse de 53m² pour profiter du soleil.
- Chambre parentale avec salle d'eau privative et dressing spacieux.
T4 dernier étage expo Sud
Réf : 5816-LLOYD&DAVIS - Date : 29/10/2025
LES ATOUTS
CARACTÉRISTIQUES
DIAGNOSTICS ENERGETIQUES
LOCALISATION
NOUS CONTACTER
DEMANDE D'INFORMATIONS
Demander plus d’informations à LLOYD & DAVIS.














