Appartement avec Vue sur mer Cannes
06400 - Cannes
DESCRIPTIF
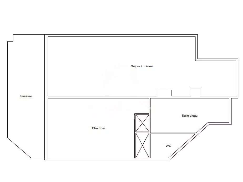
Au sein d'une résidence de renom située dans le secteur de la Californie, proche des commerces et des plages, découvrez ces deux appartements entièrement rénovés dotés de prestations de qualité.UN APPARTEMENT DE RÉCEPTIONAu 6ème étage, un appartement 4 pièces d'environ92 m² offrant une vue mer exceptionnelle sur la baie de Cannes.Un double séjour avec une cuisine équipée, une spacieuse terrasse, trois chambres en suite, chacune avec sa salle d'eau.
Un toilette invité.
Une cave et un garage.Réf.
FRE-+33 +33 (0)4 93 95...UN APPARTEMENT D'INVITÉSEn rez-de-jardin, un appartement 2 pièces d'environ 40m2 avec un séjour, une terrasse, une chambre et une salle d'eau.
Une cave.Réf.
FRE-+33 +33 (0)4 93 95...Les deux appartements présentés peuvent être vendus séparément.
Dossiers complets sur demande.Les honoraires de l'agence sont à la charge du vendeur.Les informations sur les risques auxquels ce bien est exposé sont disponibles sur le site :
- Vue mer exceptionnelle sur la baie de Cannes depuis le 6ème étage.
- Localisation privilégiée à deux pas des plages et commerces.
Cannes Californie - Deux appartements au sein d'un
Les informations sur les risques auxquels ce bien est exposé sont disponibles sur le site Géorisques :
Réf : FRE-00872 - Date : 28/11/2025
LES ATOUTS
CARACTÉRISTIQUES
DIAGNOSTICS ENERGETIQUES
LOCALISATION
NOUS CONTACTER
DEMANDE D'INFORMATIONS
Demander plus d’informations à CARLTON GROUP CANNES.





















