Appartement avec Vue sur mer Bastia - 3 chambres - 95m²
20200 - Bastia
DESCRIPTIF
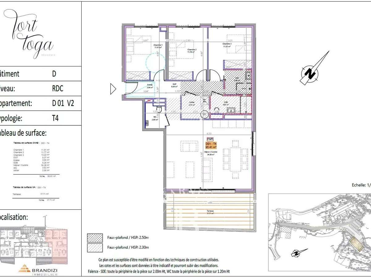
RV1815-01 – Ville di PietrabugnoSur les hauteurs de Bastia, la résidence Fort Toga propose un appartement neuf d’environ 95 m² avec vue mer, à deux pas des plages et du centre-ville.Il se compose d’un séjour lumineux avec cuisine ouverte et cellier, ouvrant sur uneterrasse, 3 chambres et une salle de bain.Implantée dans un jardin paysager, la résidence offre 2 places de stationnement.Ville di Pietrabugno combine nature et proximité de Bastia, ses plages et sentiers de randonnée.Frais de notaire réduits.Honoraires à la charge du vendeur.
- Vue mer exceptionnelle depuis l'appartement neuf.
- Jardin paysager et cadre de vie remarquable à proximité.
Ville di Pietrabugno, appartement neuf, 3 chambres
Les informations sur les risques auxquels ce bien est exposé sont disponibles sur le site Géorisques :
Réf : RV1815-01 - Date : 22/01/2026
LES ATOUTS
CARACTÉRISTIQUES
DIAGNOSTICS ENERGETIQUES
LOCALISATION
NOUS CONTACTER
DEMANDE D'INFORMATIONS
Demander plus d’informations à BARNES CORSE.














