Villa Fréjus - 4 bedrooms - 90m²
83370 - Fréjus
DESCRIPTION
Discover this exceptional opportunity: a house right on the water, located in one of the most sought-after areas of Saint-Aygulf .
Situated on a plot of land offering magnificent potential , this property requires renovation work , but represents an ideal base for creating a unique residence, perfectly suited to your desires.
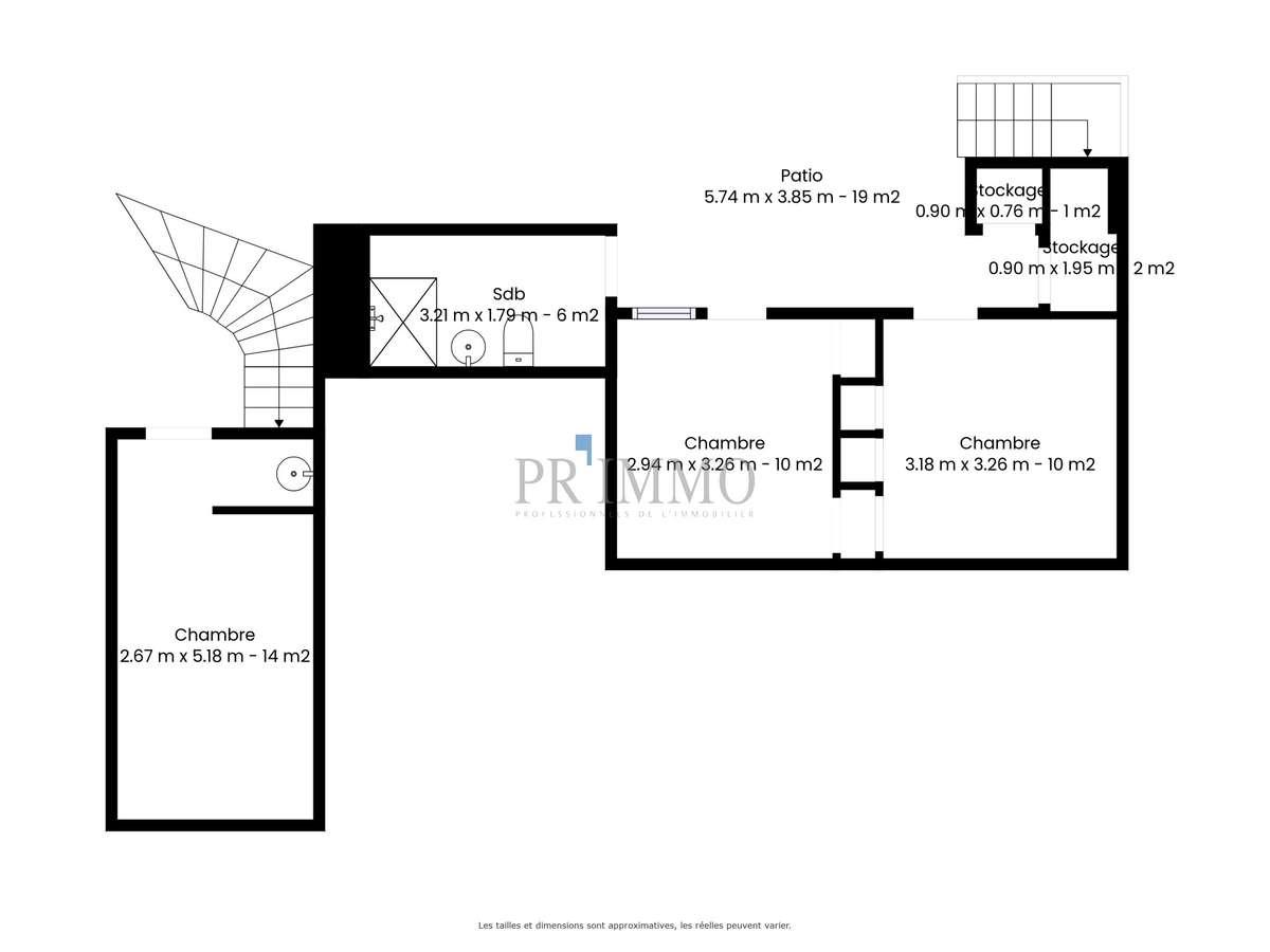
The house consists of three bedrooms , a bright living room opening onto the outside, and a garage which is highly valued in the area.
A rare property for sale, offering a privileged living environment and a genuine investment opportunity.
A must-see!
- Prime location: waterfront villa in Saint-Aygulf.
- High potential: perfect for tailor-made renovation.
- Comfort and space: bright living area with outdoor access.
Rare waterfront property in Saint-Aygulf
Information on the risks to which this property is exposed is available on the Géorisques website :
Ref : 22180_20253 - Date : 21/02/2026
FEATURES
DETAILS
ENERGY DIAGNOSIS
LOCATION
CONTACT US
INFORMATION REQUEST
Request more information from RÊVE DE SUD.























