House Paris 16e - 2 bedrooms - 84m²
75016 - Paris 16e
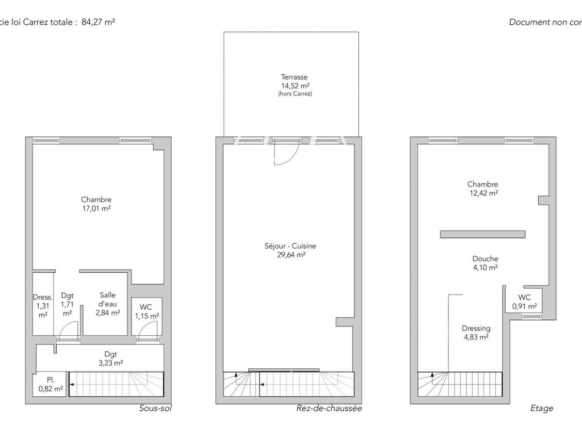
DESCRIPTION
Within a charming private, secure, and wooded villa, lies a semi-detached house of 84.27sqm and its 15sqm landscaped terrace facing west.
This rare property, completely renovated by an architect in 2018, rises on three levels accessible by a custom floating staircase.
On the ground floor, the plan offers a living room with an open kitchen and its removable dining area, perfect for entertaining.
The first floor, with a very high ceiling, includes a master suite with a dressing room, a shower room, and separate toilets.
The basement, partially underground and also accessible from the terrace, features a bedroom with a dressing room, a shower room, and separate toilets.
This house with a unique charm is appealing for its volumes and clever layout.
- Renovated by an architect in 2018, offering high-quality finishes.
- Private terrace of 15m² facing west, perfect for sunshine.
- Prime location within a secure, green villa.
Paris 16th - BOILEAU - House - 4 rooms - 84.27sqm living area - 2 bedrooms - Garden 15m²
Information on the risks to which this property is exposed is available on the Géorisques website :
Ref : 5898JASVAN - Date : 22/04/2026
FEATURES
DETAILS
ENERGY DIAGNOSIS
LOCATION
CONTACT US
INFORMATION REQUEST
Request more information from JUNOT JASMIN AUTEUIL.




















