House Millau - 6 bedrooms - 251m²
12100 - Millau
DESCRIPTION
Exceptional, in the commune of Millau, with an uninterrupted view of the Viaduct, come and discover this type 8 house with 251.12 m² of living space, completed in 2025 on its 2319 m² of land, offering rare features in the sector.
The main house, a F5 of 179.48 m², comprises a beautiful kitchen-dining room of 36.04 m² opening onto a terrace with panoramic views.
The kitchen communicates with a 22.11 m² lounge, which also has direct access to the terrace.
The parental area comprises a bedroom, dressing room and en-suite shower room.
There is also a 9.95 m² study, a separate toilet and a 76.08 m² storeroom between the house and the garage.
On the lower floor, the sleeping area comprises three bedrooms (13.05 m², 13.20 m² and 13.48 m²), a shower room and a second separate toilet.
A 29.50 m² room completes this level, ideal for a TV corner or children's playroom.
There is also a 23.59 m² cellar, a concrete slab under the terrace, and a large storage area or workshop.
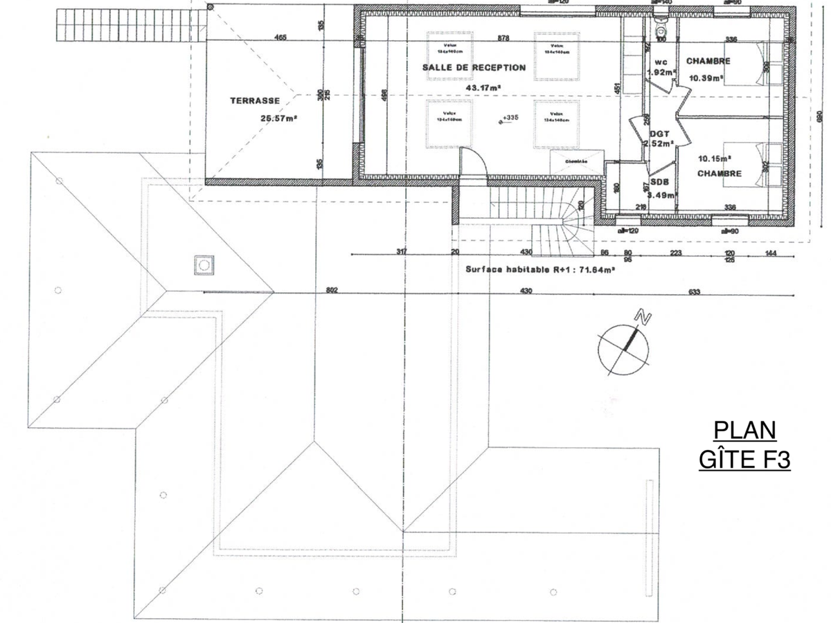
A separate 71.64 m² F3 flat completes the property.
Currently operated as a short-term rental, it generates annual income of around €18,000 for just 120 nights a year.
This flat has a large 43.17 m² living room, two bedrooms, a shower room, a separate toilet and a lovely 25.57 m² terrace with superb uninterrupted views of the Millau Viaduct.
The property features high-quality fixtures and fittings: travertine floors, meticulous finishes, air/water heat pump with underfloor heating, 10 m³ rainwater recovery tank supplying WC, washing machine and outdoor taps, 3 kW self-consumption photovoltaic panels, thermodynamic hot water tank.
The building is recent, completed in March 2025.
A rare opportunity to live in a privileged setting on the outskirts of Millau, while enjoying an attractive rental income and exceptional living comfort! This advert is brought to you by GUIDICE Romain - EIRL - N°RSAC: 841730393, Registered with the Registry of the Commercial Court of Rodez - Advert compiled and published by an Agent Mandataire -
- Breathtaking views of the Millau Viaduct
- High-quality construction with meticulous finishes
- Independent apartment generating an attractive rental income
PRESTIGIOUS PROPERTY TYPE 8 OF 251 M2 ON A PLOT OF 2319 M2
Information on the risks to which this property is exposed is available on the Géorisques website :
Ref : 251773_97852 - Date : 25/11/2025
FEATURES
DETAILS
ENERGY DIAGNOSIS
LOCATION
CONTACT US
INFORMATION REQUEST
Request more information from RESEAU EXPERTIMO.





















