House Cassis - 3 bedrooms - 222m²
13260 - Cassis
DESCRIPTION
In Cassis, within one of the most sought-after residential areas and just a short walk from the heart of the village, this exceptional 1,704 sqm building plot embodies a rare blend of prestige and exclusivity.
Fully enclosed, it enjoys breathtaking panoramic views over the iconic Cap Canaille and the surrounding vineyards, offering a truly remarkable Mediterranean backdrop.
Set in a private environment, this prime address combines tranquility with immediate proximity to the village, its picturesque harbor, and its refined lifestyle.
The plot’s ideal orientation ensures optimal sunlight throughout the day, creating the perfect setting for a bespoke luxury villa designed to harmonize with its natural surroundings.
Offered at €1,700,000 excluding fees, the land may be acquired without any construction obligation, granting complete freedom to design and build a tailor-made residence that reflects the highest standards of comfort and elegance.
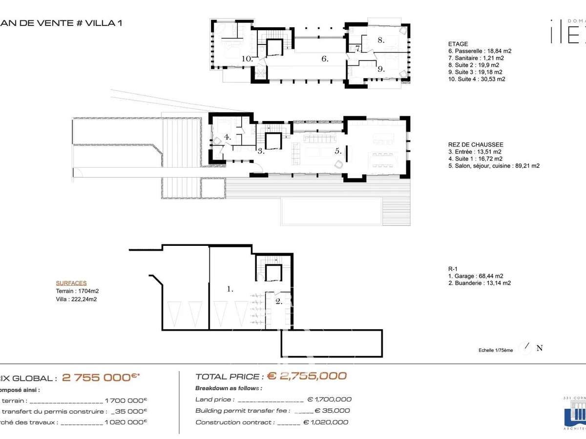
For those seeking a turnkey opportunity, a building permit has already been granted for a stunning contemporary villa of 222.24 sqm of living space, complete with a swimming pool.
The project has been thoughtfully designed to integrate seamlessly with the existing topography, enhancing both interior volumes and outdoor living spaces while maximizing the spectacular views.
This rare offering represents an outstanding investment and a unique opportunity to create an exceptional primary or secondary residence in one of the most exclusive locations on the Mediterranean coast.
Further information available upon request.
Images for illustrative purposes only.
Information regarding potential risks to which this property is exposed is available on the Géorisques website:
Discovered by
Mrs Claude Léonetti, Barnes Ambassador
Presented by Romain LINOSSIER
Agent Commercial EI (RSAC 884 874 652)
Information on the risks to which this property is exposed is available on the Géorisks website: Agency fees payable by vendor
- Panoramic view of Cap Canaille and surrounding vineyards.
- Spacious plot of 1,704 m², fully enclosed and private.
- Building permit for a contemporary 222.24 m² villa.
FOR SALE – CASSIS – VILLA – EXCEPTIONAL SETTING
Information on the risks to which this property is exposed is available on the Géorisques website :
Ref : 86937247 - Date : 23/04/2026
FEATURES
DETAILS
ENERGY DIAGNOSIS
LOCATION
CONTACT US
INFORMATION REQUEST
Request more information from BARNES MARSEILLE CASSIS LITTORAL.







