Apartment Paris 9e - 3 bedrooms - 155m²
75009 - Paris 9e
DESCRIPTION
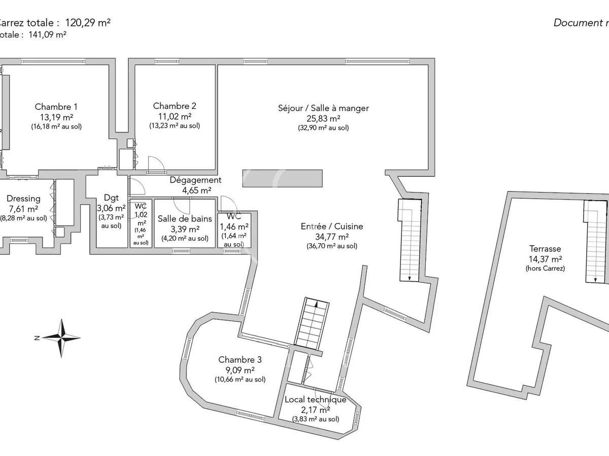
On the top floor by elevator of a well-kept condominium, this 120.29sqm loi Carrez (155.46sqm ground floor) apartment boasts panoramic views over Paris.
It comprises a pleasant living room with glass roof offering a breathtaking view of the Sacré-Cœur, a bright kitchen with access to a private 15m² rooftop, a TV lounge that could become a bedroom, two bedrooms, one of which en suite with shower room and dressing room, a separate bathroom and guest toilet.
You'll be seduced by its atypical charm, splendid views, flow-through aspect and beautiful outdoor space.
A cellar completes this offer.
Live-in janitor.
- Breathtaking panoramic views over Paris, including Sacré-Cœur.
- Private rooftop terrace of 15m², perfect for relaxation.
- Charming and bright, benefiting from excellent natural light.
Apartment - Paris 9th - Garnier Opera - 155.46 sqm - 3 bedrooms
Information on the risks to which this property is exposed is available on the Géorisques website :
Ref : 3370BRECHA09 - Date : 03/01/2026
FEATURES
DETAILS
ENERGY DIAGNOSIS
LOCATION
CONTACT US
INFORMATION REQUEST
Request more information from JUNOT MARAIS.




















