Apartment Paris 6e - 2 bedrooms - 68m²
75006 - Paris 6e
DESCRIPTION
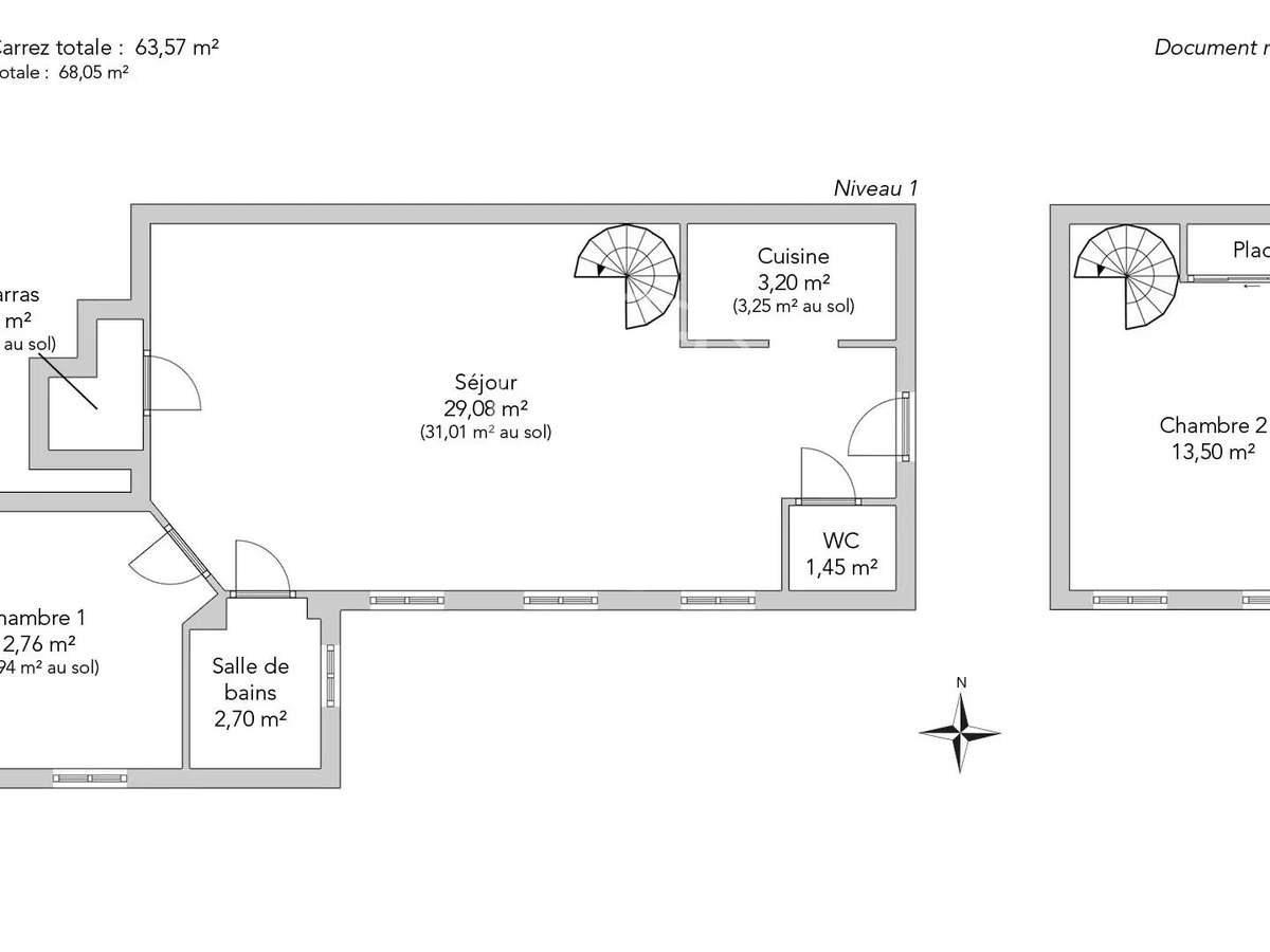
Located in the heart of the 6th arrondissement, in a charming co-ownership built in 1600 and perfectly maintained, this beautiful 63.57sqm loi Carrez duplex apartment with 68.05sqm of floor space on the first and second floors is a peaceful, quiet courtyard-style residence with the charm of an old building.
On the first level, you'll find a spacious living room with high ceilings, a separate fitted kitchen, a bedroom, a bathroom, a separate toilet and a laundry area.
Upstairs, a second bedroom with the option of adding a shower room.
The property offers plenty of storage space, an optimized layout and a warm atmosphere.
You're sure to fall in love with this apartment, which combines authenticity, calm and functionality.
A cellar completes the apartment.
- Historical charm: condominium built in 1600, in excellent condition.
- Absolute calm: located on a courtyard, away from urban hustle.
- Optimized functionality: 63.57 m² well-arranged and bright.
Apartment - Paris 6th - Saint-Germain-des-Prés - 63.57 sqm - 2 bedrooms
Information on the risks to which this property is exposed is available on the Géorisques website :
Ref : 1832CHMDEP - Date : 28/11/2025
FEATURES
DETAILS
ENERGY DIAGNOSIS
LOCATION
CONTACT US
INFORMATION REQUEST
Request more information from JUNOT 6E.
















