€540,000
Apartment Paris 3e - 1 bedroom - 34m²
75003 - Paris 3e
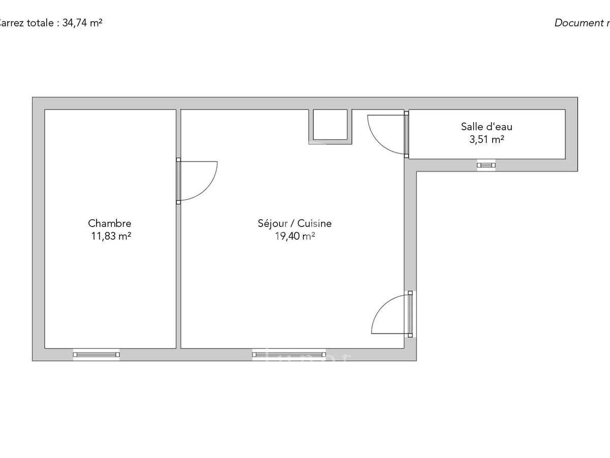
34.74m²
2 rooms
1 bed
DESCRIPTION
In an old building, on the second floor by staircase, charming apartment in quiet courtyard, comprising living room with open fitted kitchen, shower room with toilet, bedroom with storage space, renovated by architect, sold furnished.
South-facing.
Quiet and bright.
EXCLUSIVE.
- Quiet and bright thanks to southern exposure.
- Architect-designed renovation with high-end finishes.
- Prime location in a lively and dynamic neighborhood.
Apartment - Paris 3rd - Louvre, Marais, Notre Dame - 34.74 sqm - 1 bedroom
Information on the risks to which this property is exposed is available on the Géorisques website :
Ref : 3425BRESAT - Date : 29/01/2026
DETAILS
Price
€540,000
Home type
Apartment
City
Paris 3e (75003)
Rooms
2
Surface
34 m²
Living surface
34.74 m²
Bedrooms
1
Half bathrooms
1
Price details
ENERGY DIAGNOSIS
DPE
C
166 kWh/m².y
GES
A
5 kgCO2/m².y
Show more
LOCATION
CONTACT US
INFORMATION REQUEST
Request more information from JUNOT MARAIS.




















