Apartment Paris 17e - 4 bedrooms - 171m²
75017 - Paris 17e
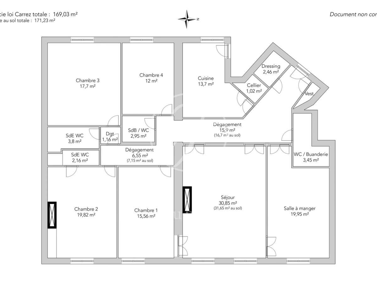
DESCRIPTION
In the heart of the Europe neighborhood – Rue de Saint-Pétersbourg, on the edge of the VIII, IX, and XVII districts, this family and reception apartment is located on the third floor with elevator of a beautiful old building with a caretaker.
With a surface area of 169.03 sqm Carrez law, it benefits from spacious volumes with a ceiling height of 3.40 meters, a flexible layout, and classic quality amenities: parquet flooring, moldings, and fireplaces.
Bright and quiet, it consists of an entrance with storage, a double living room overlooking the street, a dining room, a separate dining kitchen, as well as four spacious bedrooms, including two suites with shower rooms and toilets.
A bathroom and separate toilets complete the set.
Sectorization Condorcet.
- Generous volumes with 3.40-meter high ceilings.
- Highly sought-after area bordering multiple Parisian districts.
- Historical building with elevator and concierge.
Border of the 17th - EUROPE / BATIGNOLLES - Apartment for sale - 6 rooms - 169.03 sqm Carrez - 4 bedrooms.
Information on the risks to which this property is exposed is available on the Géorisques website :
Ref : 2994MONVIQ17 - Date : 08/04/2026
FEATURES
DETAILS
ENERGY DIAGNOSIS
LOCATION
CONTACT US
INFORMATION REQUEST
Request more information from JUNOT MONCEAU.

























